
Дизайнеры интерьера
5
·
3 отзыва
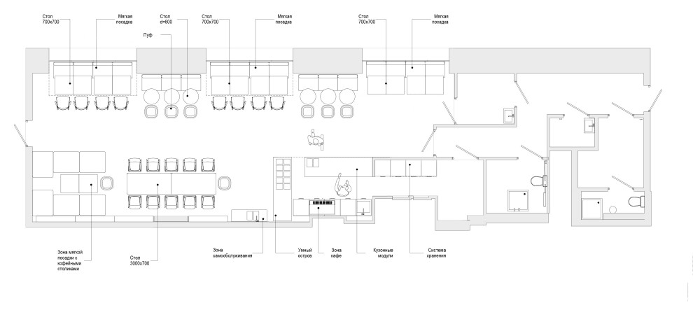
Кафе Глитч
Авторы проекта: Илья Ерошевич, Светлана Поздеева
Другие фотографии в проекте
Вопросы к фото 0
Задайте вопрос
Вам ответят эксперты. Пришлем уведомление, когда вам ответят

Дизайнеры интерьера
5
·
3 отзыва
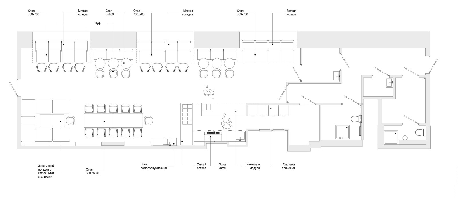
Авторы проекта: Илья Ерошевич, Светлана Поздеева
Другие фотографии в проекте
Вам ответят эксперты. Пришлем уведомление, когда вам ответят