История с камином 68 кв.м. (фотографии)
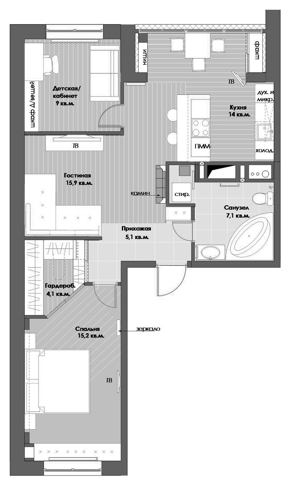
Основная задача при проектировании интерьера этой квартиры стояла следующая: сделать из изначально двухкомнатной квартиры комфортную трехкомнатную для семейной пары, учтя при этом все пожелания и заказчиков. . . Основными пожеланиями по перепланировке были: максимально увеличить санузел, сделать его совмещенным, с отдельно стоящей большой душевой кабиной. Сделать просторную удобную кухню, которая по изначальной планировке получилась совсем небольшая и совмещенную с ней гостиную. Хотелось большую гардеробную-кладовку и большой шкаф в прихожей. И третью комнату, которая будет служить в первые пару-тройку лет кабинетом и гостевой, а затем легко превратится в детскую для будущего малыша. . . Работать над проектом было одно удовольствие. Довольно быстро мы утвердили объемно-планировочное решение и коллажи, мебель, свет и все чистовые отделочные материалы. Во многом этот проект - результат нашего сотворчества с заказчицей, которая принимала активное участие в проекте надо отдать должное ее хорошему вкусу и тонкому чувствованию тенденций. . . Фотограф: Роман Мокров
23 фотографии























