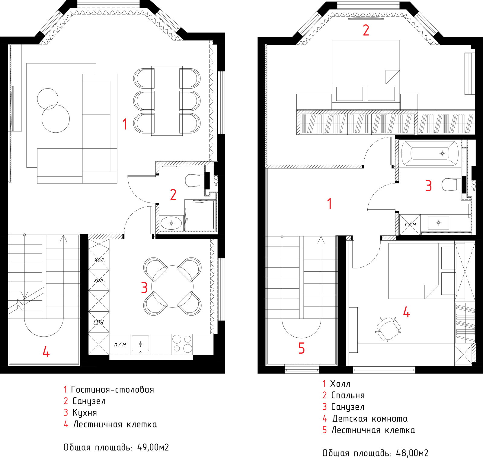
Профиль пользователяинтерьер таунхаусаГод реализации: 2019г. Туапсе21 фотографияПоделитьсяСохранитьсанузелПоделитьсяСохранитьсанузел гостевойПоделитьсяСохранитькнижные полки в детскойПоделитьсяСохранитьхранение в детскойПоделитьсяСохранитьинтерьер детскойПоделитьсяСохранитьдетскаяПоделитьсяСохранитьинтерьер спальниПоделитьсяСохранитьшкаф в спальнеПоделитьсяСохранитьхранение в спальнеПоделитьсяСохранитьспальняПоделитьсяСохранитьваннаяПоделитьсяСохранитьванная комнатаПоделитьсяСохранитьстол на кухниПоделитьсяСохранитьинтерьер кухниПоделитьсяСохранитьнебольшая кухняПоделитьсяСохранитьлестницаПоделитьсяСохранитьлестницаПоделитьсяСохранитьинтерьер таунхаусаПоделитьсяСохранитьтв зона в гостинойПоделитьсяСохранитьинтерьер гостиной в стиле минимализмПоделитьсяСохранитьпланировка таунхаусаПоделитьсяСохранить