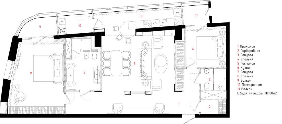
Профиль пользователяинтерьер трехкомнатной квартирыГод реализации: 2019Стоимость проектирования: 12 250 000 ₽г. Краснодар, улица Кубанская набережная17 фотографийПоделитьсяСохранитьпрачечнаяПоделитьсяСохранитьбалкон в квартиреПоделитьсяСохранитьгостевой санузелПоделитьсяСохранитьванная комнатаПоделитьсяСохранитьинтерьер ваннойПоделитьсяСохранитьванная комнатаПоделитьсяСохранитьспальняПоделитьсяСохранитьинтерьер спальниПоделитьсяСохранитьинтерьер спальниПоделитьсяСохранитьприхожаяПоделитьсяСохранитьинтерьер прихожейПоделитьсяСохранитьстоловаяПоделитьсяСохранитьинтерьер кухниПоделитьсяСохранитькамин в квартиреПоделитьсяСохранитьинтерьер гостинойПоделитьсяСохранитьинтерьер гостинойПоделитьсяСохранитьпланировка квартирыПоделитьсяСохранить