Интерьер для двоих
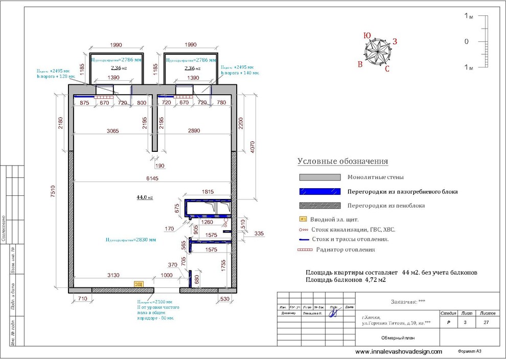
Проект небольшой квартиры в современном стиле для семьи из двух человек. Квартира расположена в новом жилом комплексе недалеко от Москвы.
Год реализации: 2019
Стоимость проектирования: 1 050 000 ₽
14 фотографий
Проект небольшой квартиры в современном стиле для семьи из двух человек. Квартира расположена в новом жилом комплексе недалеко от Москвы.
14 фотографий
