
Дизайнеры интерьера
5
·
5 отзывов
Интерьер для двоих
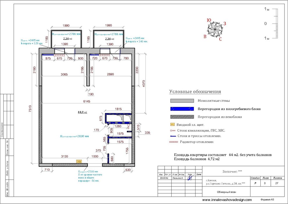
Автор проекта Инна Левашова. Обмерный план квартиры.
Другие фотографии в проекте
Вопросы к фото 0
Задайте вопрос
Вам ответят эксперты. Пришлем уведомление, когда вам ответят

Дизайнеры интерьера
5
·
5 отзывов
Автор проекта Инна Левашова. Обмерный план квартиры.
Другие фотографии в проекте
Вам ответят эксперты. Пришлем уведомление, когда вам ответят