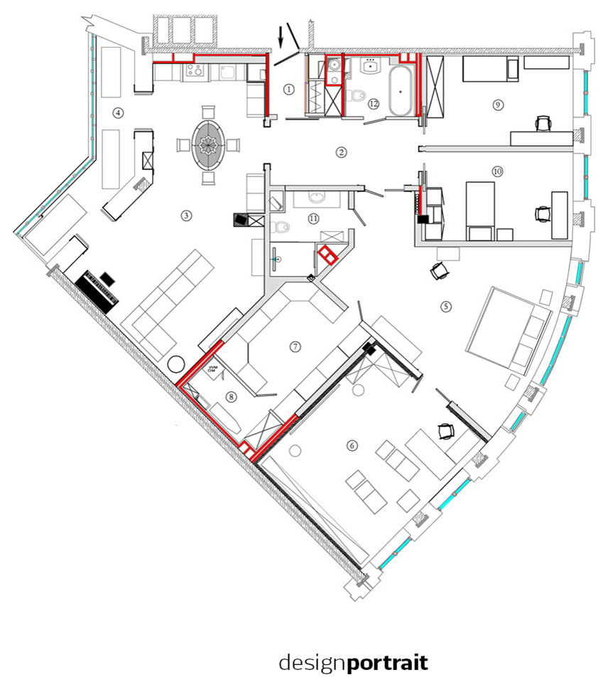
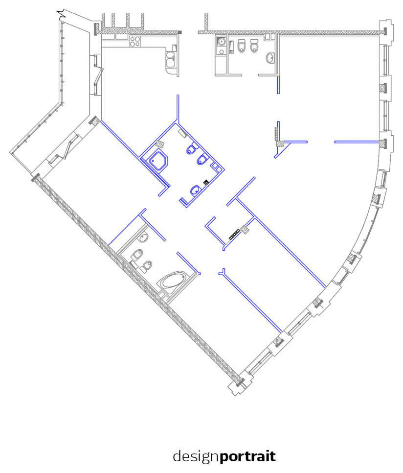
Inspired by Landscape
The pictorial landscapes are the ‘windows’, and the real windows are covered with shutters. The interior obeys the motives of pictures. The general decorative idea was to use natural materials, antique (no glaze!) marble, oiled (no varnish!) teak flooring, no wallpaper, only paint in colors backing up painting landscapes
Год реализации: 2013
г. Санкт-Петербург
28 фотографий



























