Индивидуальный жилой дом в д.Иврово Ленинского района Тульской области
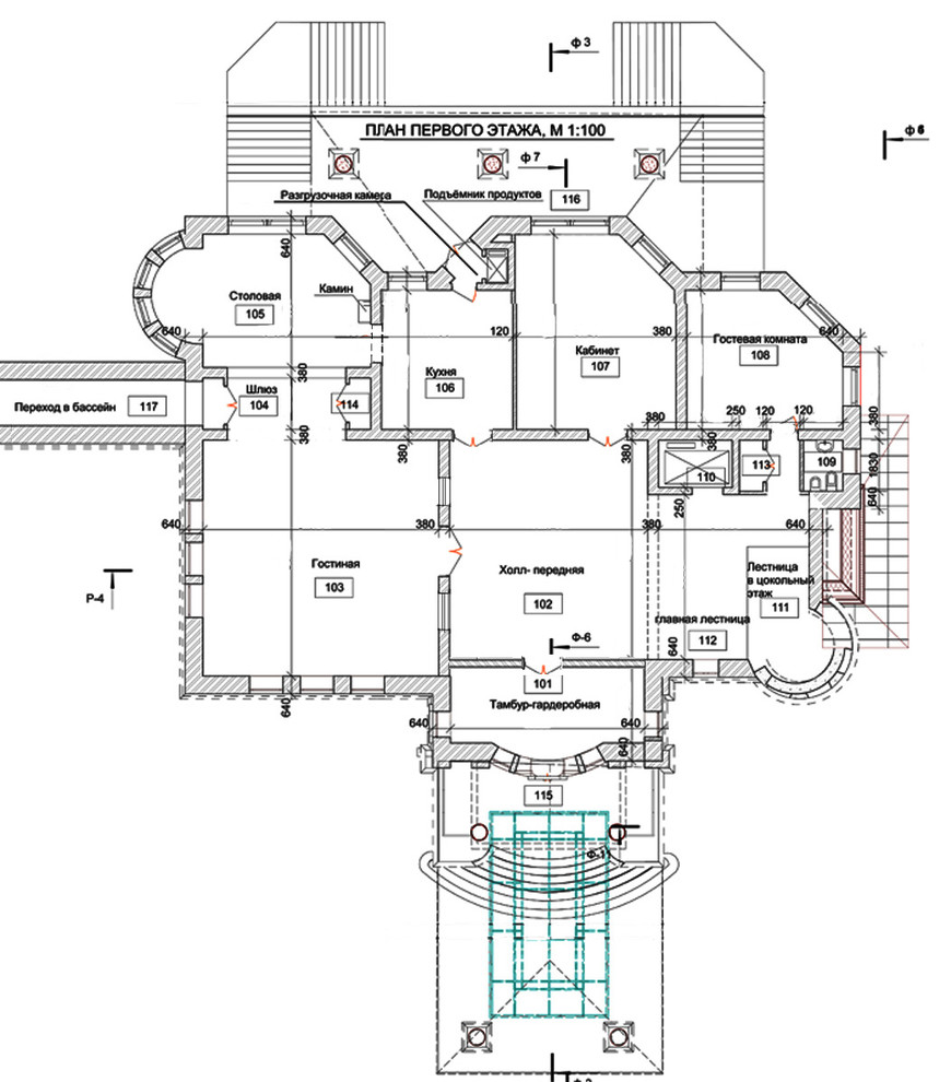
Индивидуальный жилой дом для семьи из 5 человек спланирован и размещён с учётом рельефа. Он имеет три уровня с цокольным этажом и . расширенный набор помещений для спорта и отдыха. В эскизный проект вошли предложения по ландшафтному дизайну и интерьеры основных помещений, включая бассейн.
Год реализации: 2012
Стоимость проектирования: 275 000 ₽
18 фотографий



















