Ясный
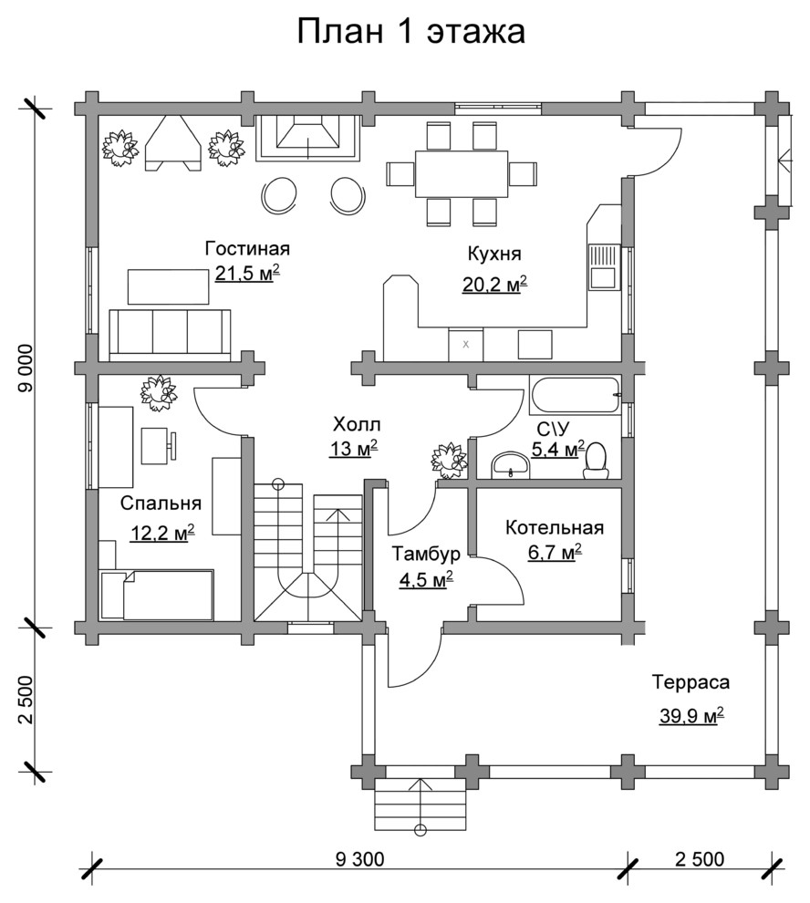
На первом этаже расположились кухня, гостиная, холл, спальня, с/у и тамбур, из которого есть выход в котельную. Мансарда в свою очередь имеет три спальни, кладовую и с/у. . . Общая площадь 202,3 кв.м. . Жилая площадь 162,4 кв.м. . Площадь первого этажа 123,4 кв.м. . Площадь второго этажа 78,9 кв.м.
Стоимость проектирования: 1 050 000 ₽
3 фотографии




