Аврора
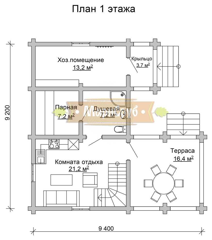
Двухэтажная баня с просторной террасой, большой комнатой отдыха, парной и душевой. . . Общая площадь 113,7 кв.м. . Жилая площадь 93,6 кв.м. . Площадь первого этажа 68,3 кв.м. . Площадь второго этажа 44,8 кв.м.
Стоимость проектирования: 1 050 000 ₽
3 фотографии




