HOUSE GRASS interior
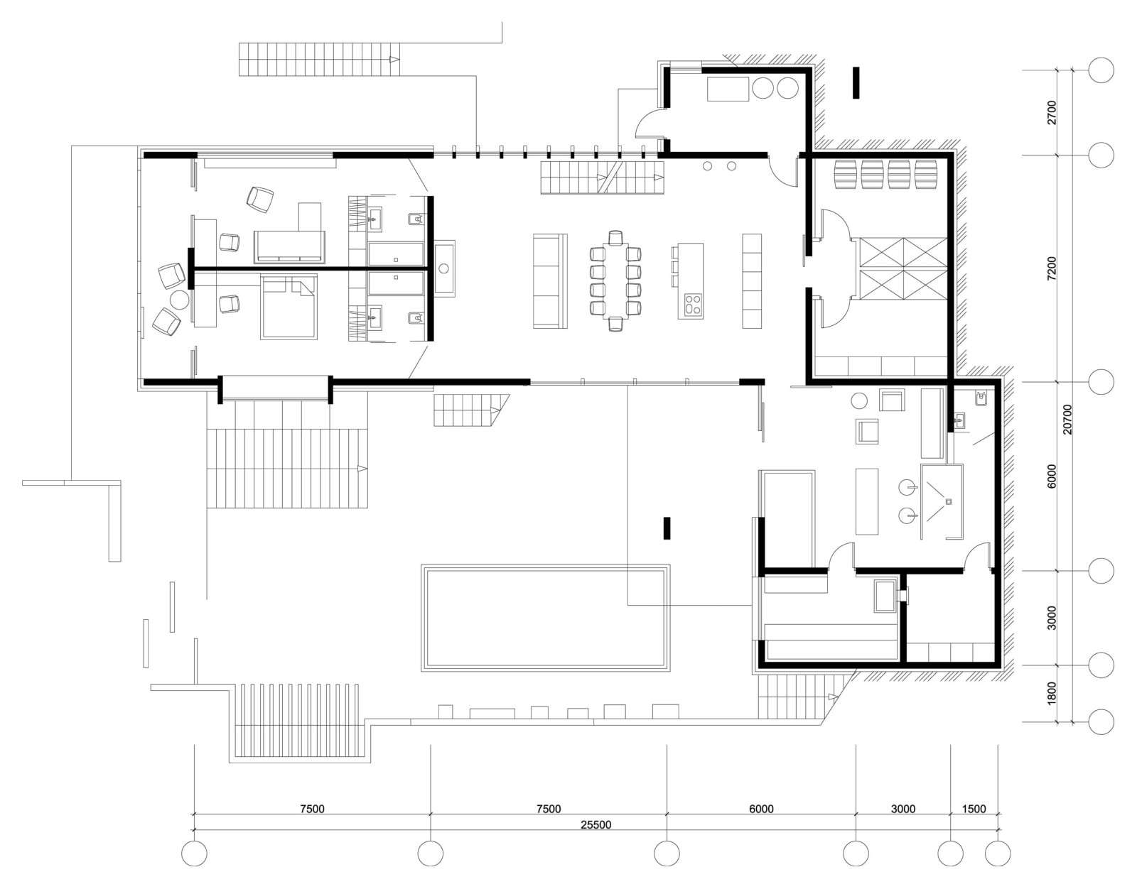
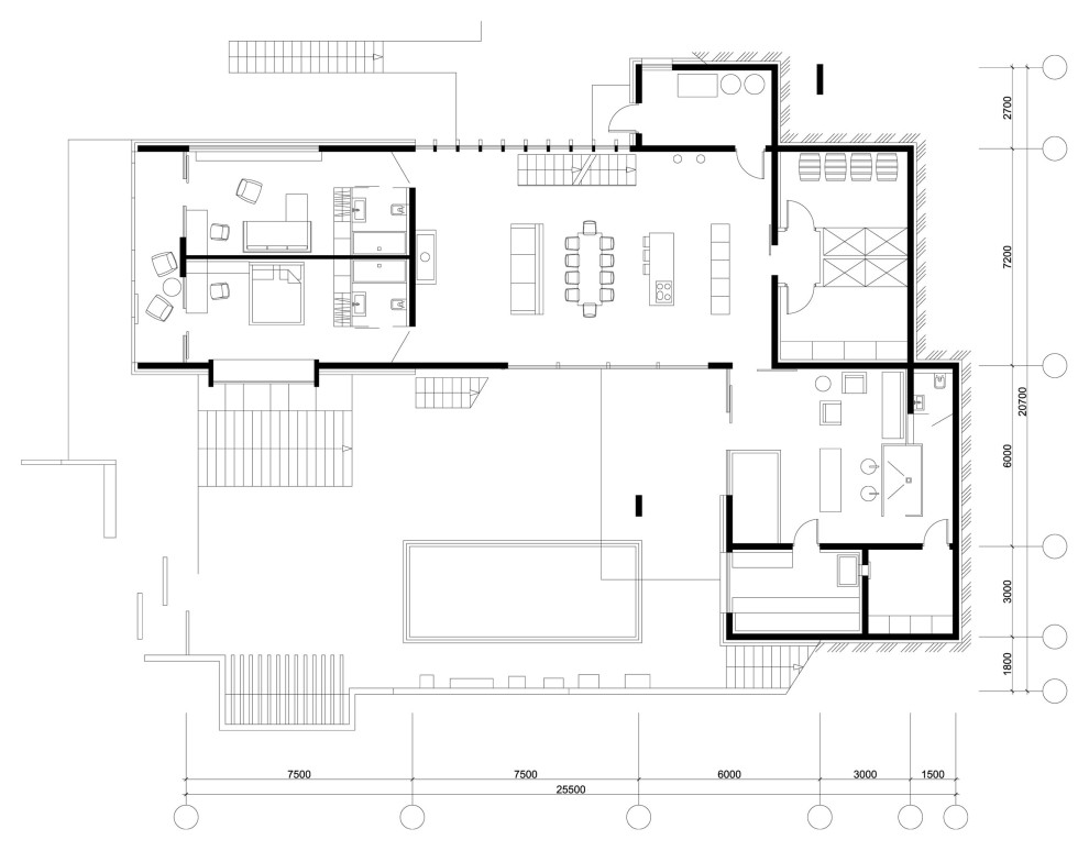
Интерьер этого дома неразрывно связан с экстерьером и архитектурным объемом дома. . Что всецело совпадает с нашей философией проектирования. . Планировка дома на рельефе разделилась на две части. .
Год реализации: 2022
13 фотографий













