Готовый дом с отделкой по проекту "Дунай" 195 м2
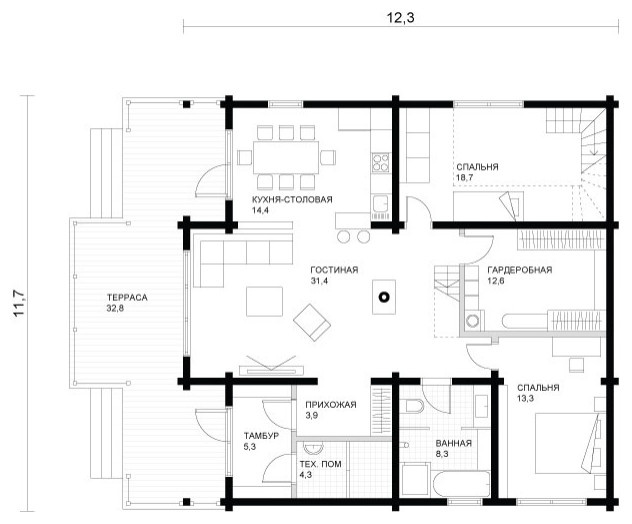
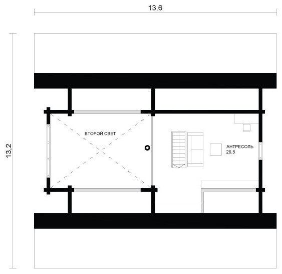
Продается готовый к проживанию дом из клееного бруса 195м2 с участком 1000 м2. Забор полностью готов. . Дом построен несколько лет назад, из ангарской сосны, устоялся - усадки не дает. Ремонт выполнен в 2019 году, никто еще не жил. Продается как есть вместе с мебелью. . Просторный, с большой террасой на южной стороне. . Планировка: кухня-зал со вторым светом (потолки 4.7 метра), два санузла, четыре комнаты (три на первом этаже, одна на втором) . Коммуникации: городскои водопровод, электричество, городская канализация, телевидение, оптоволоконныи интернет. . Право собственности: участок в собственности, дом оформлен, с адресом, подходит под ипотеку. . Безопасность: дом находится в охраняемом коттеджном поселке с видеонаблюдением. . . . Планировка Дома: . . 1 этаж : . - гостиная с двойным светом . - кухня столовая . - две спальные комнаты . - два санузла . - техническое помещение . - гардеробная (может быть 3-ей комнатой) . - тамбур . - большая открытая терраса . . 2 этаж: . - кабинет (гостевая) . . ТЕХНИЧЕСКИЕ ХАРАКТЕРИСТИКИ: . - общая площадь дома 195 м2; . - количество спален 3 шт; . - количество санузлов 2 шт; . - площадь участка 1000 м2; . . МАТЕРИАЛЫ: . - стены дома - клееный брус Ангарская сосна; . - крыша - мягкая кровля TEGOLA, Италия (50 лет гарантия); . - фундамент - монолитная плита на ростверке; . - окна - деревянные клееный брус Ангарская Сосна; . . СИСТЕМЫ ЖИЗНЕОБЕСПЕЧЕНИЯ: . - электроснабжение - 25 кВт; . - водоснабжение - городское; . - канализация - городская; . - отопление - электрическое, котел
31 фотография






























