Гостиная с большим будущим
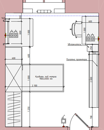
Это пространство с историей и большим будущим. Ранее тут была детская, а сейчас планируется гостиная для молодой девушки, которая любит творчество группы Гражданская Оборона и предпочитает смотреть фильмы на проекторе. Здесь так же будут собираться компании чтобы общаться и играть в настольные игры. . Сейчас стены помещения довольно темные, а окно выходит на северную сторону. Заказчице хотелось сделать эту комнату светлее, добавить в нее солнца. Так появилась акцентная желтая стена. Остальные стены светло-серые и вторят основной цветовой гамме квартиры. Шведскую стенку решено было оставить, поскольку в планах потом переделать гостиную в детскую. Потолок, пол и входная дверь остались без изменений. . Мною было продумано планировочное решение так, чтобы потом можно было заменить только диван и столик. Все нужные розетки будут выведены заранее и впоследствии не придется отвлекаться на ремонт. В детской останется проектор, на нем классно будет смотреть сказки и мультики, но постепенно появится другая мебель. Конечно же удобная кровать, шкаф для одежды, шкаф для книг и учебников, рабочий стол, который легко будет совместить с подвесной консолью.
7 фотографий








