Газовое отопление в доме 285 м
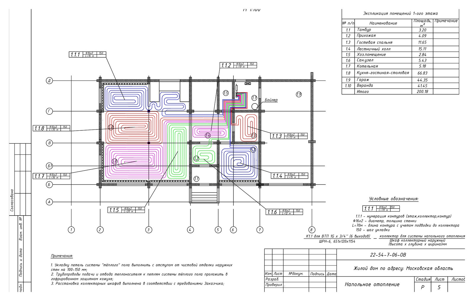
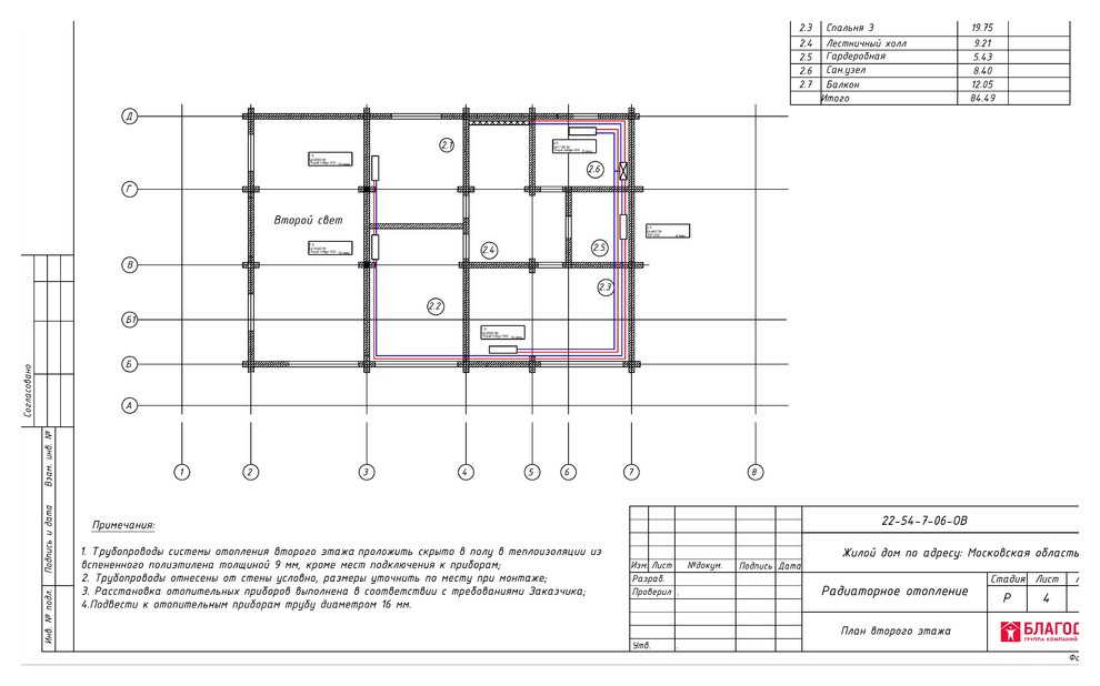
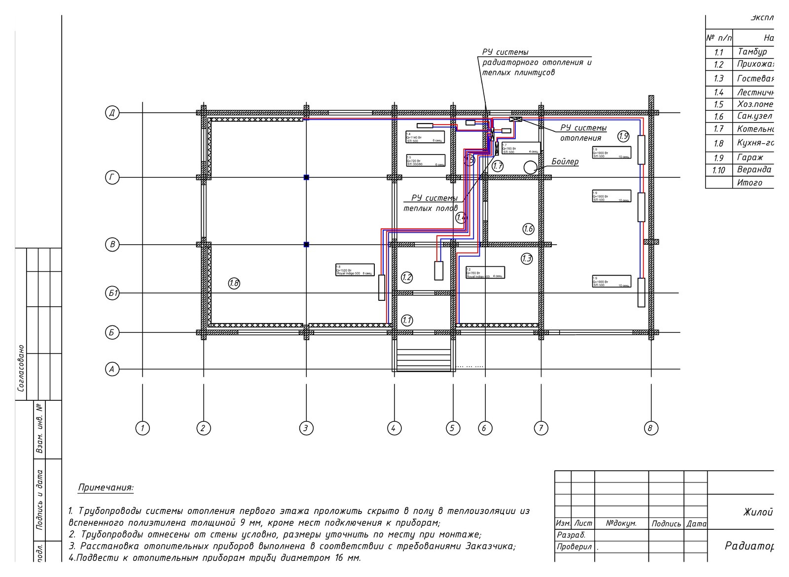
Создано энергоэффективное отопление с автоматическим зонированным управлением тёплыми полами и радиаторами, благодаря которому поддерживается комфортная температура, как отдельно в каждой комнате, так и во всем доме. Дом обеспечен холодным и горячим водоснабжением.
Год реализации: 2018
7 фотографий






