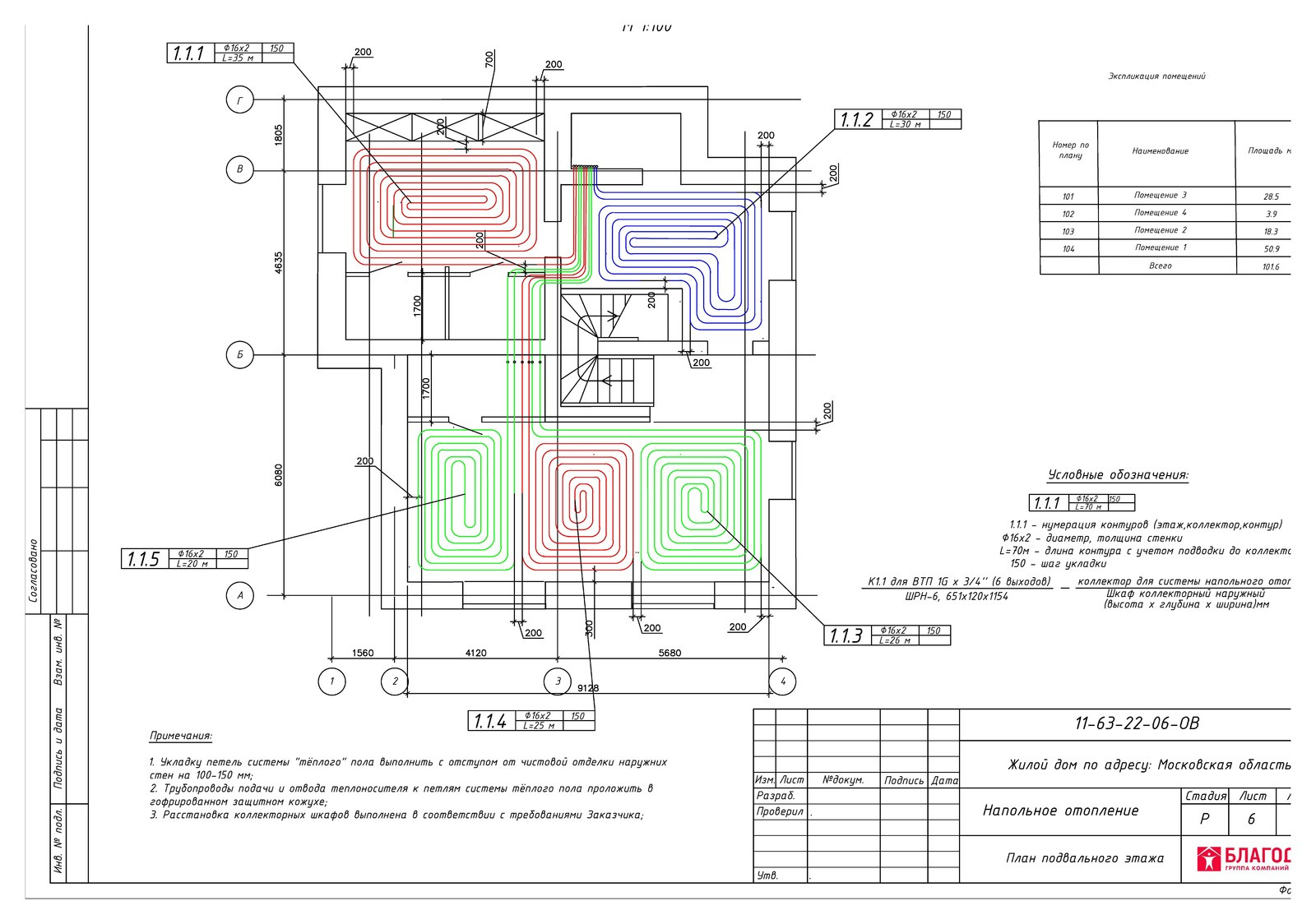
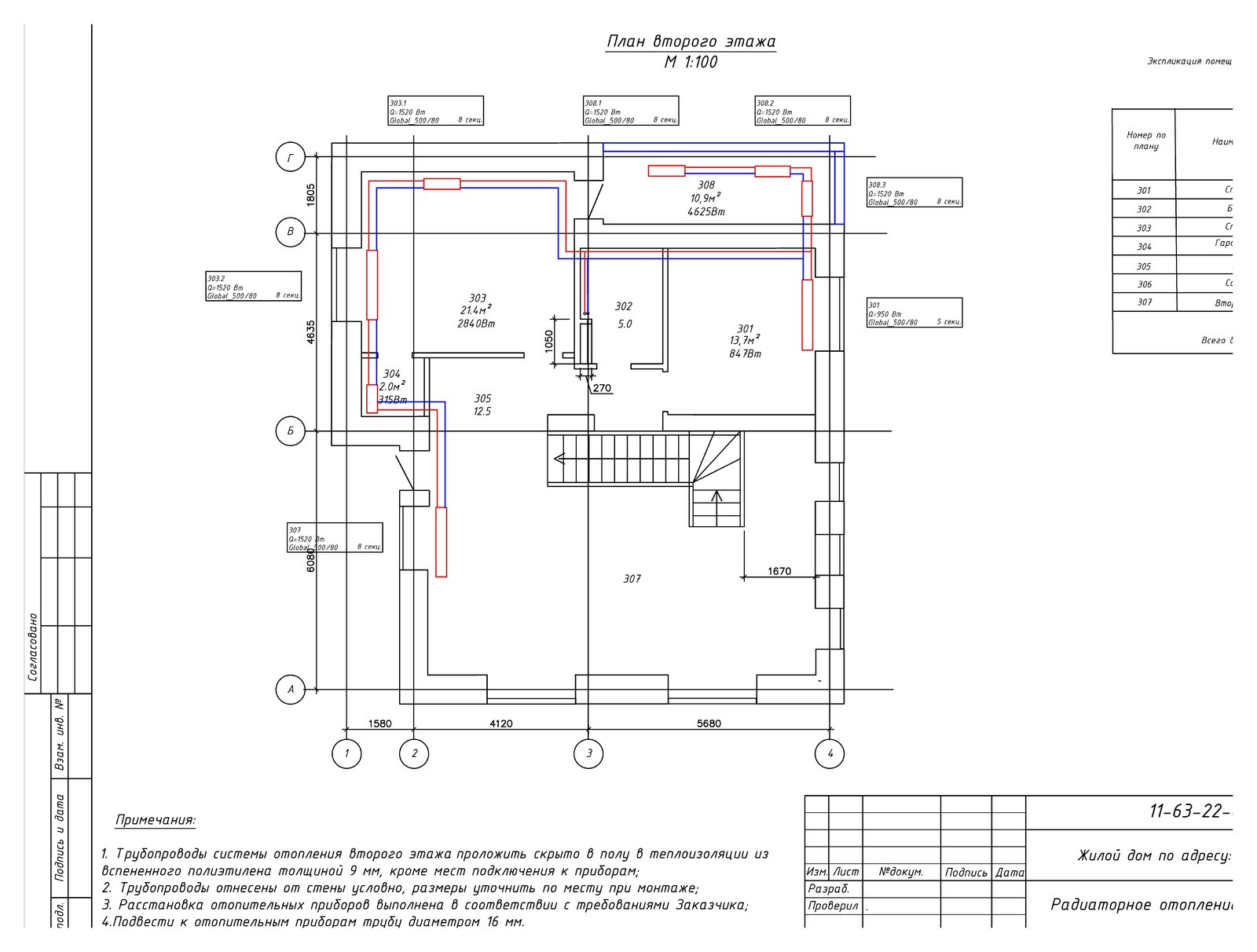
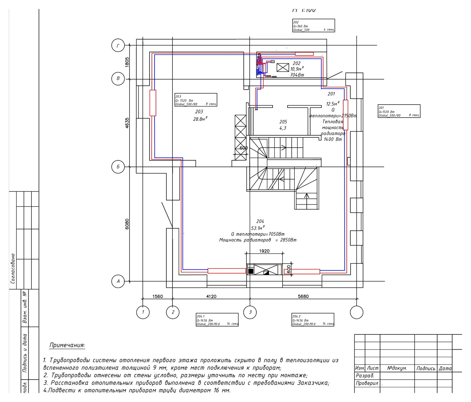
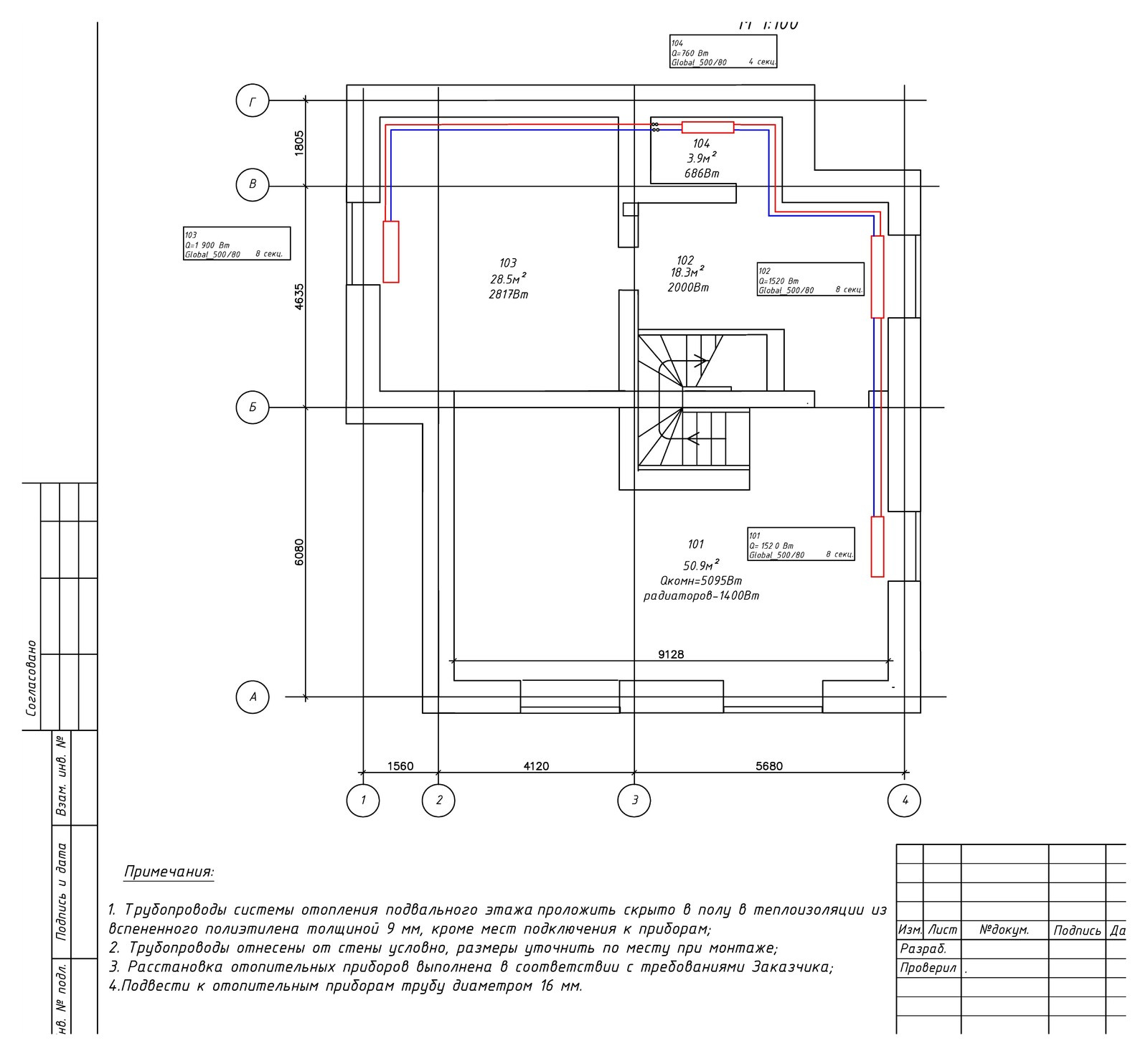
Газовое отопление в доме 265 м2
Энергоэффективное отопление обеспечивает комфортную температуру в доме, благодаря датчику наружной температуры регулируется котёл, что позволяет сократить расход газа. Объём бака для горячего водоснабжения рассчитан в соответствии с количеством проживающих, чтобы горячей воды хватило всем.
Год реализации: 2018
10 фотографий









