Гамильтон_783 кв.м
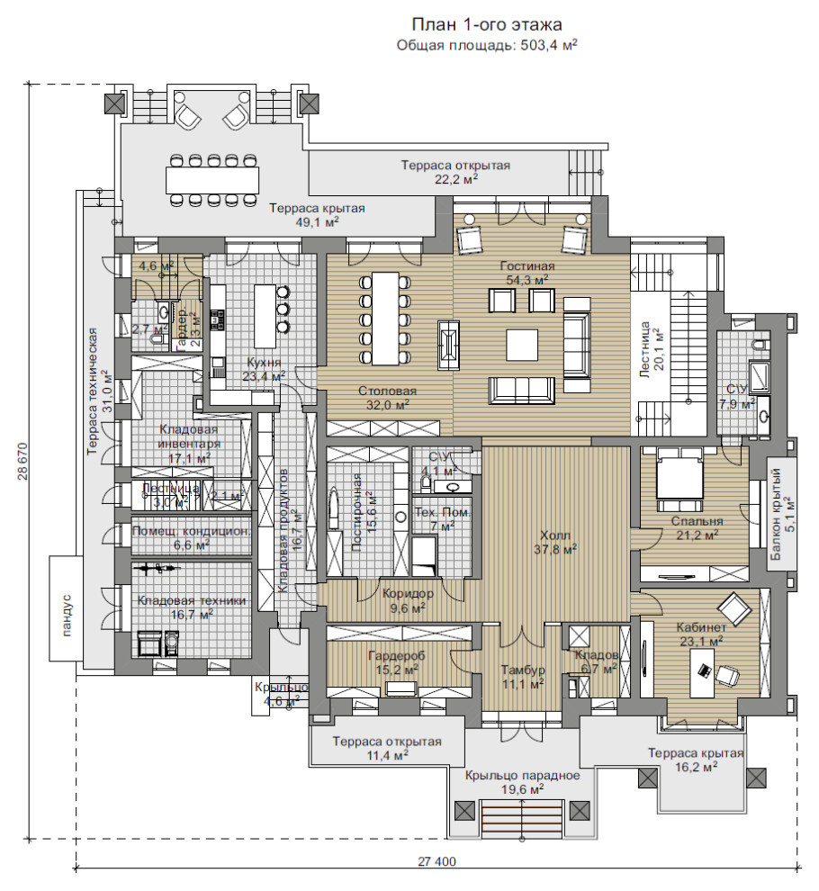
Автор проекта Vesco Construction . Год проекта 2019 . Площадь дома 783 кв.м. . Архитектурный стиль Прерий . Количество спален 6 . Количество санузлов 7 . Тип фундамента Ж/б плита . Стены Кирпич . Перекрытия Монолит . Окна Алюминиевый профиль, цвет серый . Тип кровли Фальцевая, цвет светло-серый . Фасад Натуральный камень Песчанник . Цоколь Клинкерная плитка чёрная . Габариты дома 27,4*28,7 м . Строгий элегантный экстерьер этого особняка понравится ценителям особого американского стиля Райта, или стиля прерий. Архитектурная композиция дома состоит из противоречащих друг другу деталей. Несмотря на выразительные вертикали панорамных окон на фасаде, дом имеет явный горизонтальный вектор. Разлогая крыша имеет очень маленький угол уклона и большие свесы, которые формируют надежный защитный козырек по всему периметру дома. . В лучших традициях стиля Райта, экстерьер дома органично вписывается в окружающий ландшафт. Светлые нейтральные оттенки внешней отделки особняка воспринимаются очень благоприятно и прекрасно характеризуют изысканный вкус владельцев дома. Фасад облицован натуральным камнем песчаником, цоколь выложен клинкерной плиткой черного цвета. . Крыша на доме выполнена по фальцевой технологии и имеет красивый благородный светло-серый оттенок. Огромные двухуровневые панорамные окна изготовлены из алюминиевого профиля серого цвета. Фундамент дома представляет собой мощную монолитную железобетонную плиту, стены выложены из высококачественного кирпича, межэтажные перекрытия выполнены по монолитной технологии. Такая конструкция очень прочна, надежна и долговечна. . Особняк двухэтажный, при габаритах 27,4 м. х 28,7 м. он имеет площадь 783 кв. м. В нем 6 спален и 7 санузлов. В центре первого уровня располагается большой холл площадью 37,8 кв. м., пройдя через него можно оказаться в объединенном пространстве гостиной-столовой, общей площадью более 86 кв. м. Огромная двусветная комната разделена посередине двусторонним камином, отсюда есть два выхода на террасу. Кухня площадью 23 кв. м. располагается рядом со столовой, в ней есть черный ход, а также кладовая для хранения продуктов с отдельным входом с улицы. . На первом уровне также располагается традиционная гостевая спальня, ее площадь составляет 21,2 кв. м. В ей предусмотрен крытый балкон и индивидуальный санузел. Рядом находится кабинет хозяина дома, в него можно попасть из центрального холла, а также с улицы – через отдельную крытую террасу площадью 16,2 кв. м. Это очень удобно – можно принимать посетителей, не впуская их в приватное жилое пространство. . . В особняке имеется огромное количество технических помещений, практически все они сконцентрированы в левом крыле дома. Здесь есть кладовая для инвентаря, для садовой техники, комната с кондиционирующим оборудованием, и другие вспомогательные помещения. . На втором этаже имеется уютная вторая гостиная площадью 13,3 кв. м. с удобным кухонным уголком, и выходом на большой крытый балкон размером 17,7 кв. м. На этаже также располагаются 3 спальни членов семьи. Мастер-люкс роскошен – он состоит из прихожей-будуара размером 9,7 кв. м., спальни площадью 24,8 кв. м., огромной гардеробной площадью 23,8 кв. м., ванной размером 15,8 кв. м. и компактного балкона, выходящего на тихий задний двор. Две другие спальни имеют размеры 21,8 кв. м. и 21,2 кв. м. Каждая оборудована индивидуальным санузлом и гардеробной. . В доме предусмотрена изолированная квартира для обслуживающего персонала. Она состоит из прихожей, кухни, столовой, санузла, технического помещения, и двух компактных спален площадью 9 кв. м. и 7,4 кв. м .
10 фотографий










