Функциональный и привлекательный дом с гаражом для узкого участка, проект Z293
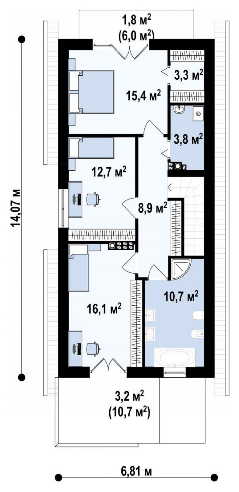
Проект Z293 . Общая площадь 153.9 кв. м . Количество этажей 2 . Количество спален 3 . Количество санузлов 3 . Коробка 3 085 000 р . Коробка + теплый контур 4 672 000 р
Год реализации: 2021
11 фотографий












