Двухэтажный коттедж в европейском стиле по проекту Z396
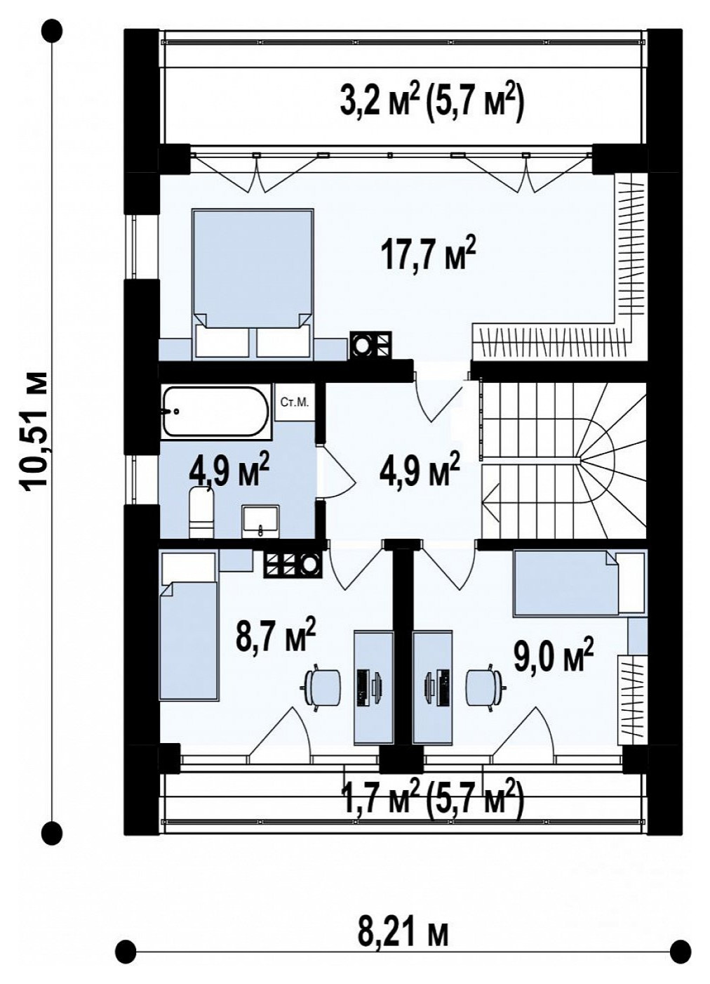
Название проекта Z396 . Общая площадь 105.9 кв.м . Количество этажей 2 . Количество спален 4 . Количество санузлов 2 . "Коробка" 2 875 000 р . "Коробка" + "Теплый контур" 4 190 000 р
Год реализации: 2021
6 фотографий






