Фрунзе 8
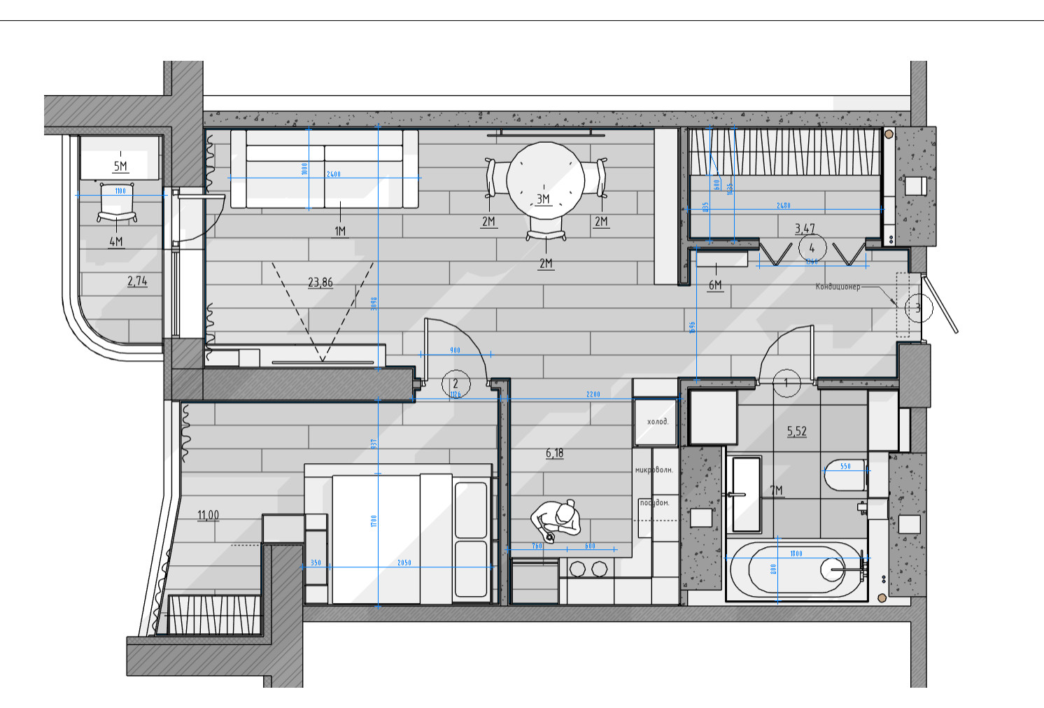
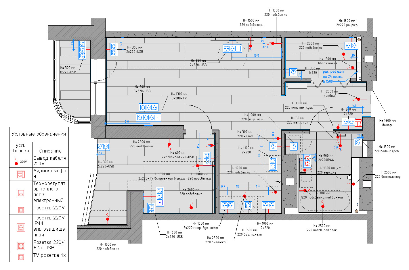
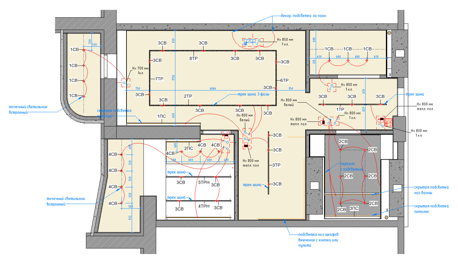
Дизайн квартиры был придуман архитектором Савушкиным Алексеем для молодого человека в современном стиле. Объект располагается на 21 этаже с шикарным видом на город. . . Интерьер выполнен в сдержанных тонах цвета слоновой кости и серо-зеленого. Минимализм в отделочных материалах добавляет строгости в интерьер, также минимализм поддерживается с помощью больших "блоков" мебели, где нет эффекта дробления интерьера на много мелких частей. . . В квартире присутствует большое количество подсветки, которой можно создать различную атмосферу. . . Спальня выполнена в более темных тонах по желанию заказчика. Здесь хотелось создать атмосферу более "тяжелую" способствующую хорошему сну. . . Срок выполнения данного проекта составил 2 месяца. Полный альбом с дизайн-проектом включает в себя 58 листов с подробными чертежами, узлами, спецификациями, изометрическими видами и визуализациями. . Альбом очень подробный и в дальнейшей работе по реализации не возникает вопросов. По отзывам строителей 95% необходимых чертежей в проекте присутствуют! Поэтому если вы желаете получить не просто картинки, а реально воплотимый проект - обращайтесь в компанию Планировки-вл. Наш опыт работы более 18 лет. Проекты есть в Москве, Санкт-Петербурге, Сочи, Владивостоке, Краснодаре, Португалии. . . . Обращайтесь к нам и мы поможем в реализации Ваших идей о комфортной и красивой жизни! .
24 фотографии

























