
Дизайнеры интерьера
0
Фрунзе 8
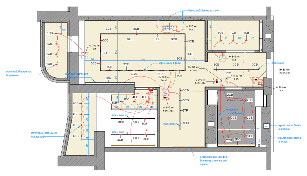
План осветительных приборов с привязками к выключателям
Другие фотографии в проекте
Вопросы к фото 0
Задайте вопрос
Вам ответят эксперты. Пришлем уведомление, когда вам ответят

Дизайнеры интерьера
0
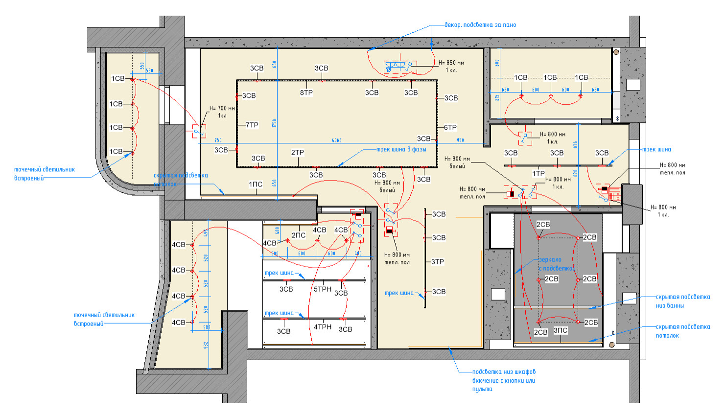
План осветительных приборов с привязками к выключателям
Другие фотографии в проекте
Вам ответят эксперты. Пришлем уведомление, когда вам ответят