Flaming
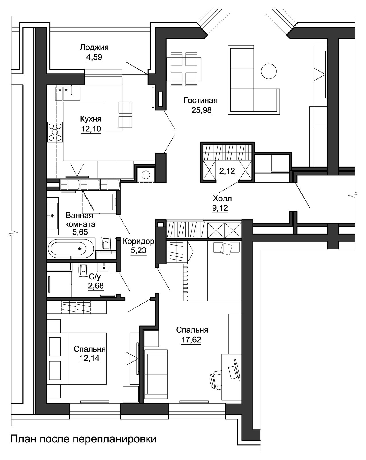
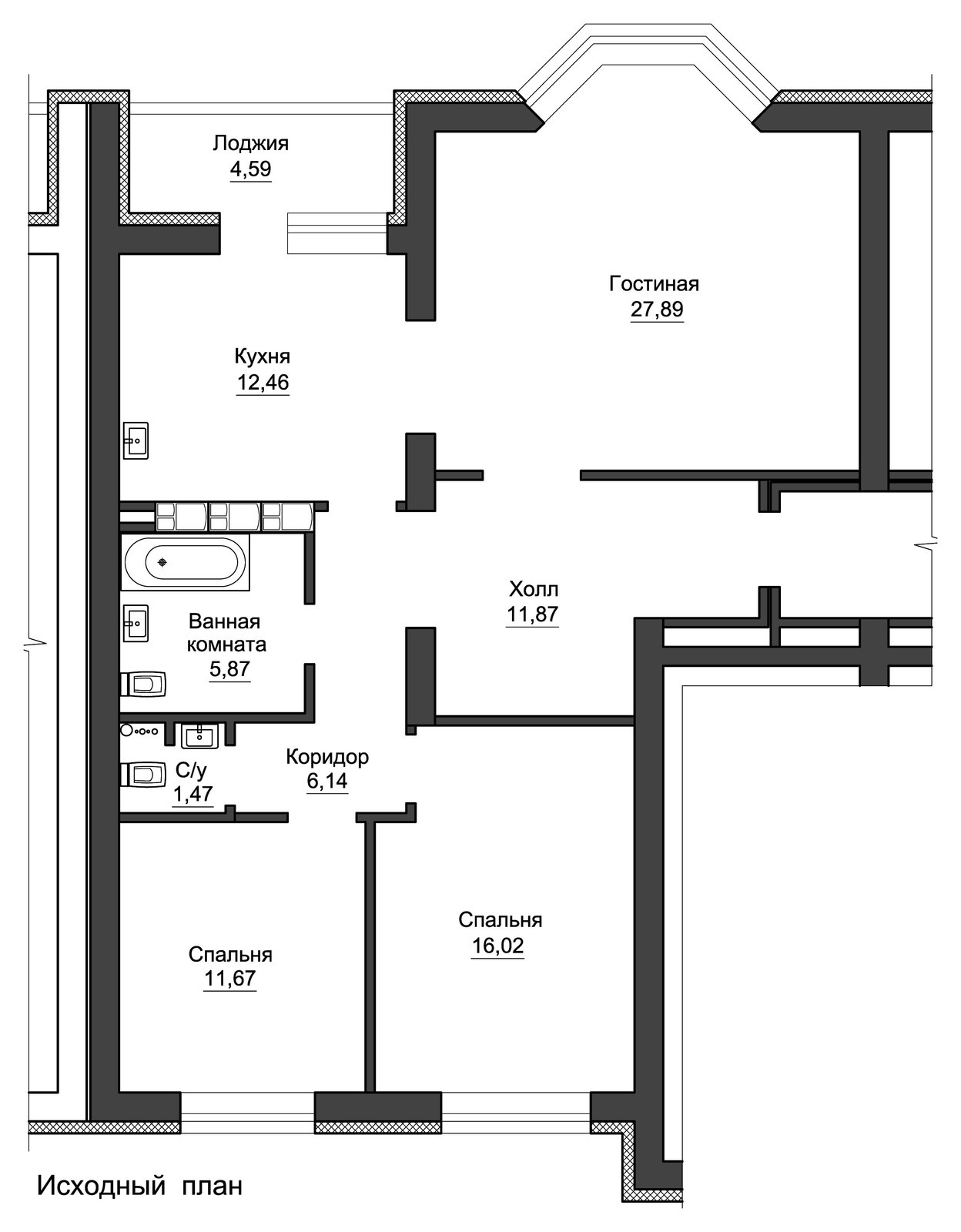
Исходная планировка квартиры с существующим расположением комнат и несущей стеной между гостиной и кухней не позволяла существенно что-то менять. Перепланировка затронула объем прихожей. Одно из пожелания заказчиков - максимально удобная систем хранения. Организованная при входе гардеробная – “синий куб” стал композиционным и функциональным ядром общественной части квартиры.Интерьер квартиры или дома – это всегда отражение, живущих в нем людей. Яркая эмоциональность и интеллигентная сдержанность, свойственная хозяевам квартиры, которые гармонично дополняют друг друга, отразились в их интерьере.
Год реализации: 2016
14 фотографий














