Евротрешка в Москве
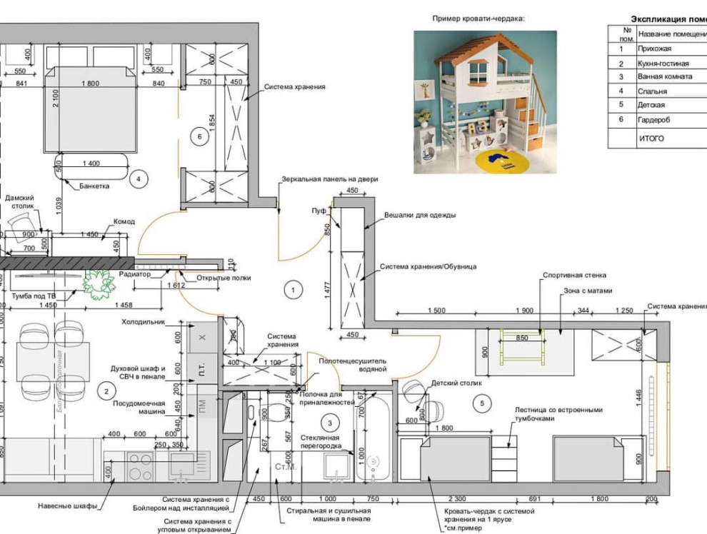
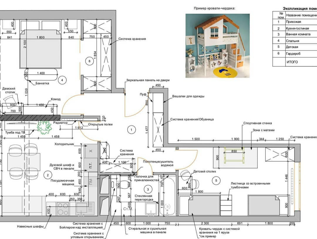
Проект небольшой "евротрешки" от нашей студии для семьи из трех человек. Достаточно удобная планировка, которую не пришлось сильно перекраивать. Окна на две стороны - хорошо. Вход в квартиру не с самого дальнего угла, тоже неплохо. Санузел не раздельный, но вместительный. Нашлось место и для гардеробной.
Год реализации: 2021
г. Москва
40 фотографий









































