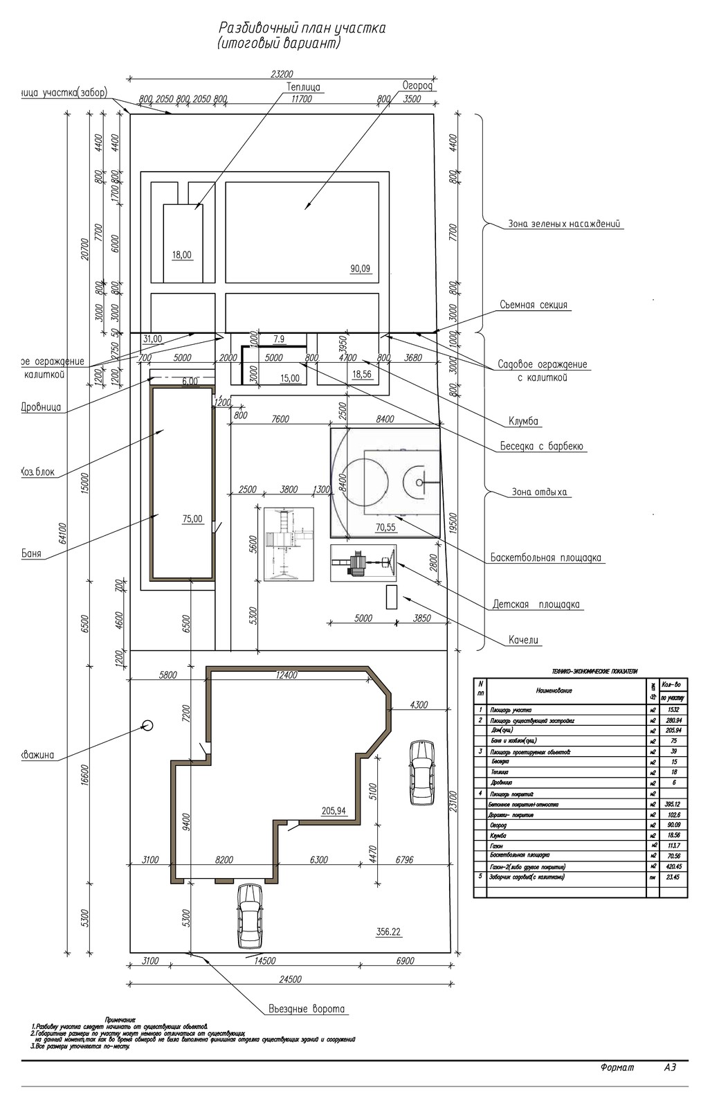
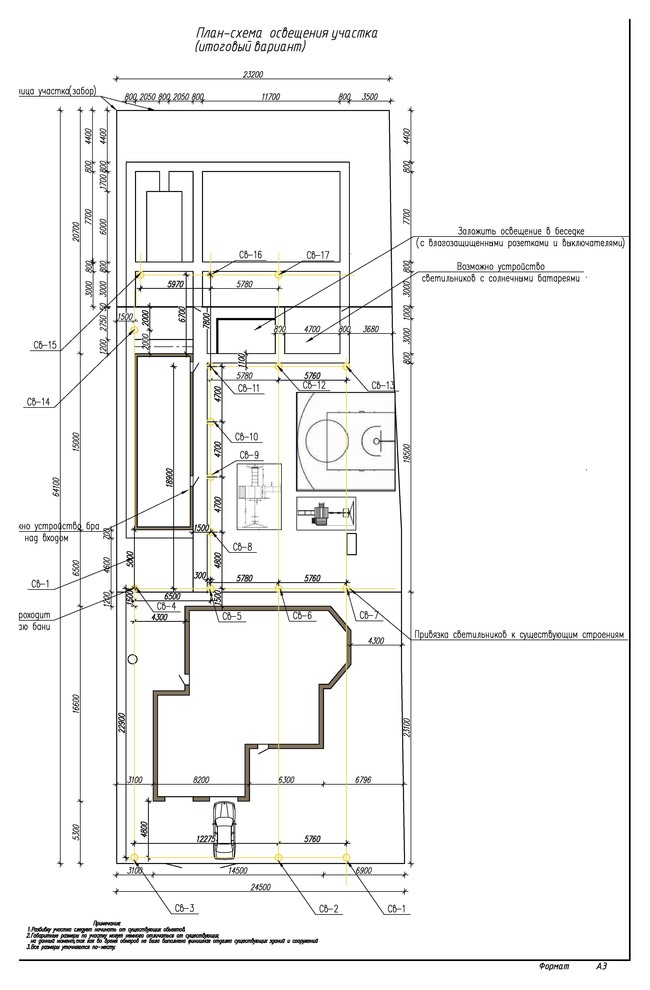
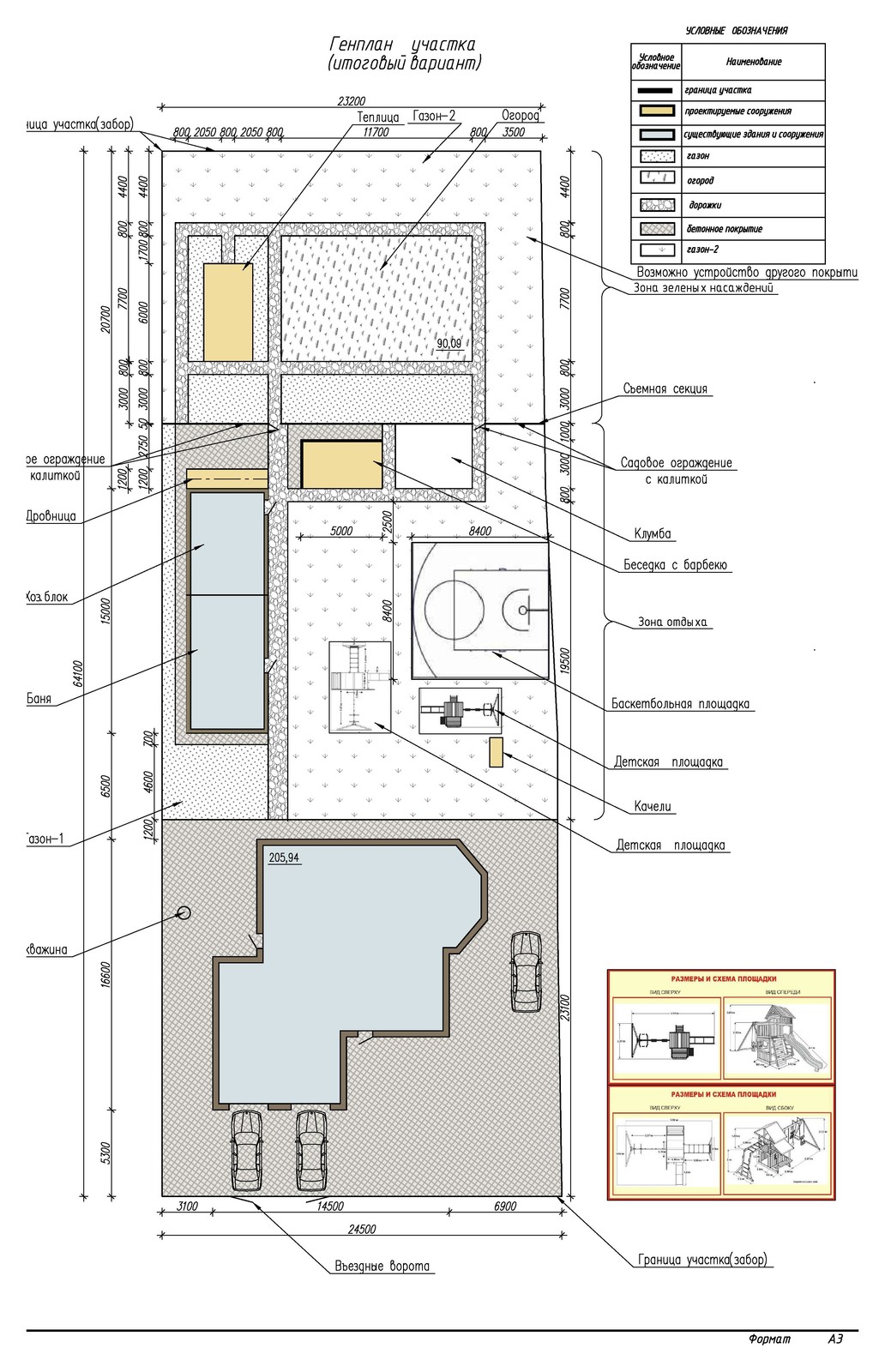
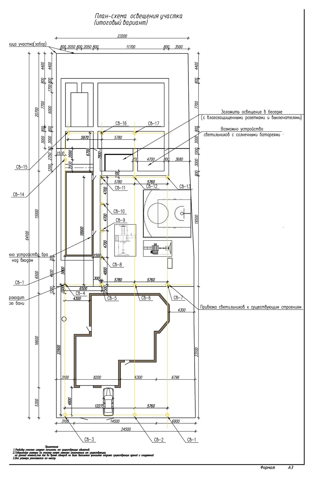
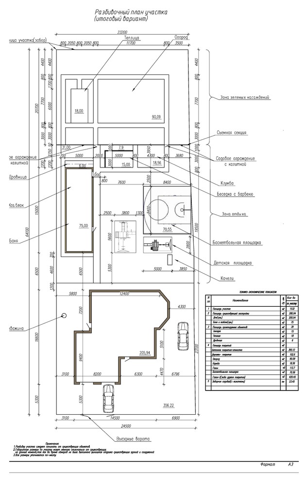
Профиль пользователяЭскизный проект благоустройства участкаГод реализации: 2017Стоимость проектирования: 34 999 ₽г. Пенза, улица Добролюбова7 фотографийПоделитьсяСохранитьЭскизный проект благоустройства участкаПоделитьсяСохранитьЭскизный проект благоустройства участкаПоделитьсяСохранитьЭскизный проект благоустройства участкаПоделитьсяСохранитьЭскизный проект благоустройства участкаПоделитьсяСохранитьЭскизный проект благоустройства участкаПоделитьсяСохранитьЭскизный проект благоустройства участкаПоделитьсяСохранитьЭскизный проект благоустройства участкаПоделитьсяСохранить