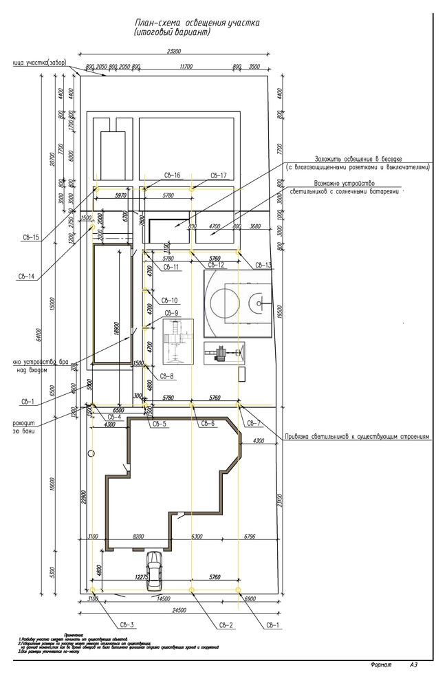
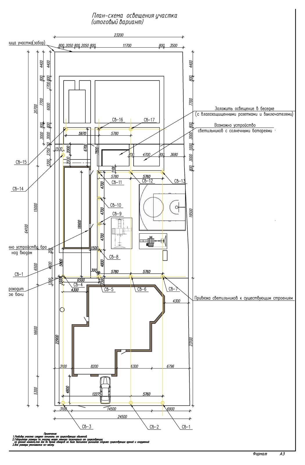
Другие фотографии в проекте Эскизный проект благоустройства участка
Вам ответят эксперты. Пришлем уведомление, когда вам ответят
Благоустройство территории, Генплан, Контемпорари, Лавки, Пенза, альпийская горка, водоем, дизайн интерьеров, дизайн участка, качественный, коттедж, ландшафтный дизайн, планировка участка, проектирование, разработка, ручей, современно