Двухкомнатная квартира в скандинавском стиле 61м2 в ЖК "Гринпарк"
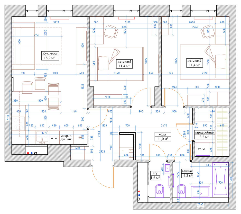
Проект двухкомнатной квартиры для семьи из четырех человек. Заказчики хотели светлую, современную квартиру в скандинавском стиле для себя и двух сыновей. Проживали они в большом загородном доме, оформленном в классическом стиле, а квартиру купили недалеко от дома, чтобы весь учебный год жить там с детьми. А на выходные уезжать за город. Им хотелось совершенно противоположный по стилю интерьер. Квартира сдавалась с ремонтом от застройщика. Решили все переделывать, так как качество отделки не устроило клиентов. Вся мебель в проекте - из икеи, за исключением встроенных позиций. Детские комнаты похожи по оформлению, чтобы у мальчиков не было конкуренции между собой.
Год реализации: 2018
Стоимость проектирования: 135 000 ₽
г. Москва, улица Березовая аллея, Новомосковский административный округ
21 фотография






















