Двухкомнатная квартира 61м2 в ЖК "Соколиный форт" в стиле неоклассика
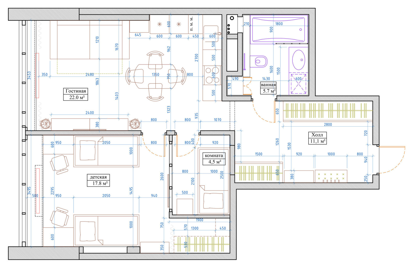
Клиентка обратилась к нам с просьбой сделать из большой по площади однокомнатной квартиры 61м2 - двухкомнатную. До этого она, ее муж и их двое сыновей, жили в просторной трехкомнатной квартире. До перепланировки, в каждой комнате была большая лоджия. Мы объединили все в единое пространство, что позволило разместить гостиную-кухню с раскладным диваном для хозяйки квартиры и детской для двух мальчиков, с гардеробной зоной. Заказчица еще очень просила выкроить маленькую комнатку со спальным местом, на случай гостей. Ее любимый цвет - слоновая кость и все оттенки бежевого. Вся основная мебель в гостиной и холле выполнена в этих тонах. Но при этом, интерьер не выглядит скучным, за счет ярких цветовых акцентов.
Год реализации: 2019
Стоимость проектирования: 135 000 ₽
г. Москва, 1-я Мясниковская улица, Восточный административный округ
16 фотографий
















