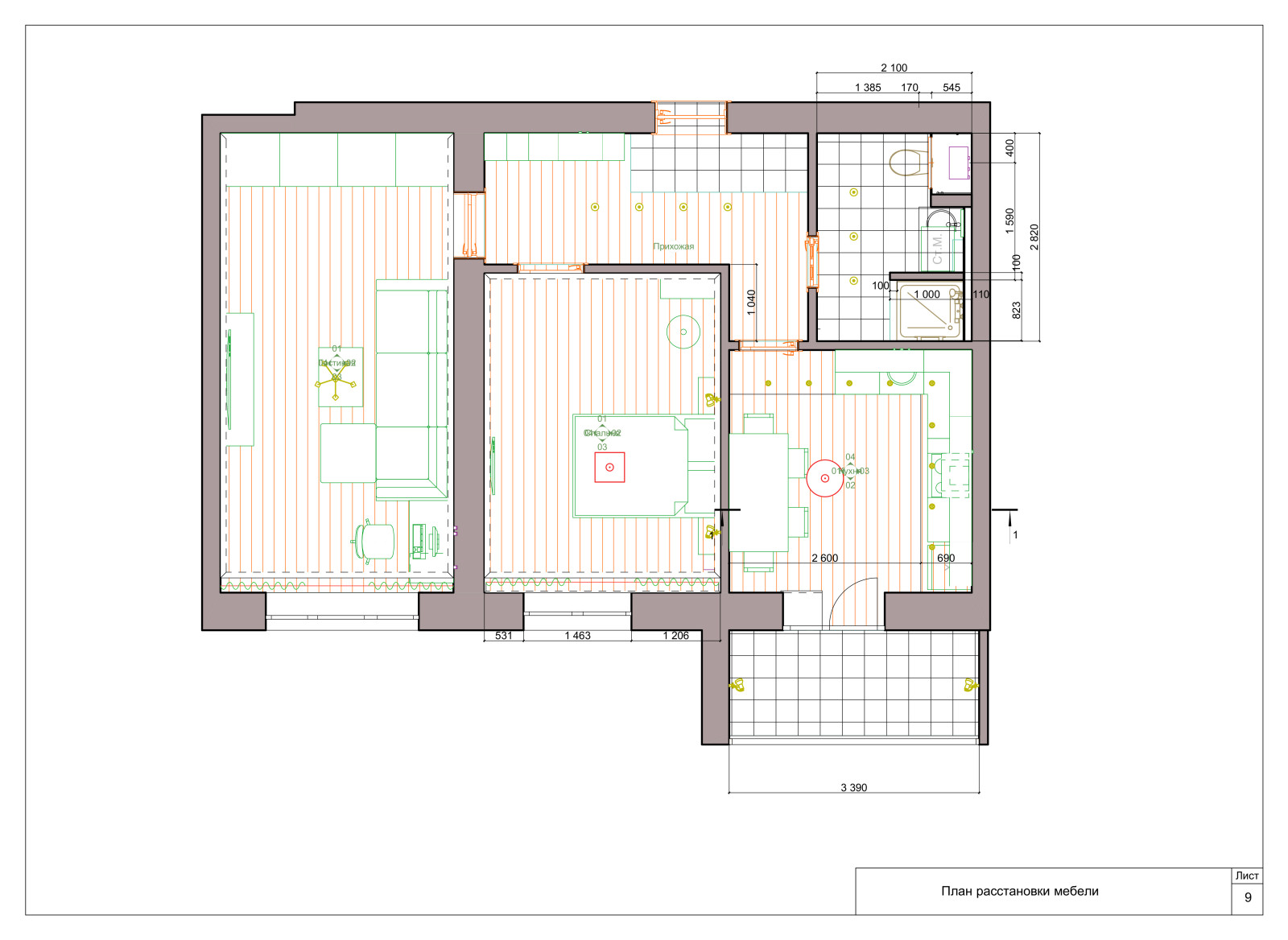
Профиль пользователяДвухкомнатная квартира в новостройкеГод реализации: 2021Стоимость проектирования: 34 999 ₽7 фотографийПоделитьсяСохранитьДвухкомнатная квартира в новостройкеПоделитьсяСохранитьДвухкомнатная квартира в новостройкеПоделитьсяСохранитьДвухкомнатная квартира в новостройкеПоделитьсяСохранитьДвухкомнатная квартира в новостройкеПоделитьсяСохранитьДвухкомнатная квартира в новостройкеПоделитьсяСохранитьДвухкомнатная квартира в новостройкеПоделитьсяСохранитьДвухкомнатная квартира в новостройкеПоделитьсяСохранить