Дом в Токсово
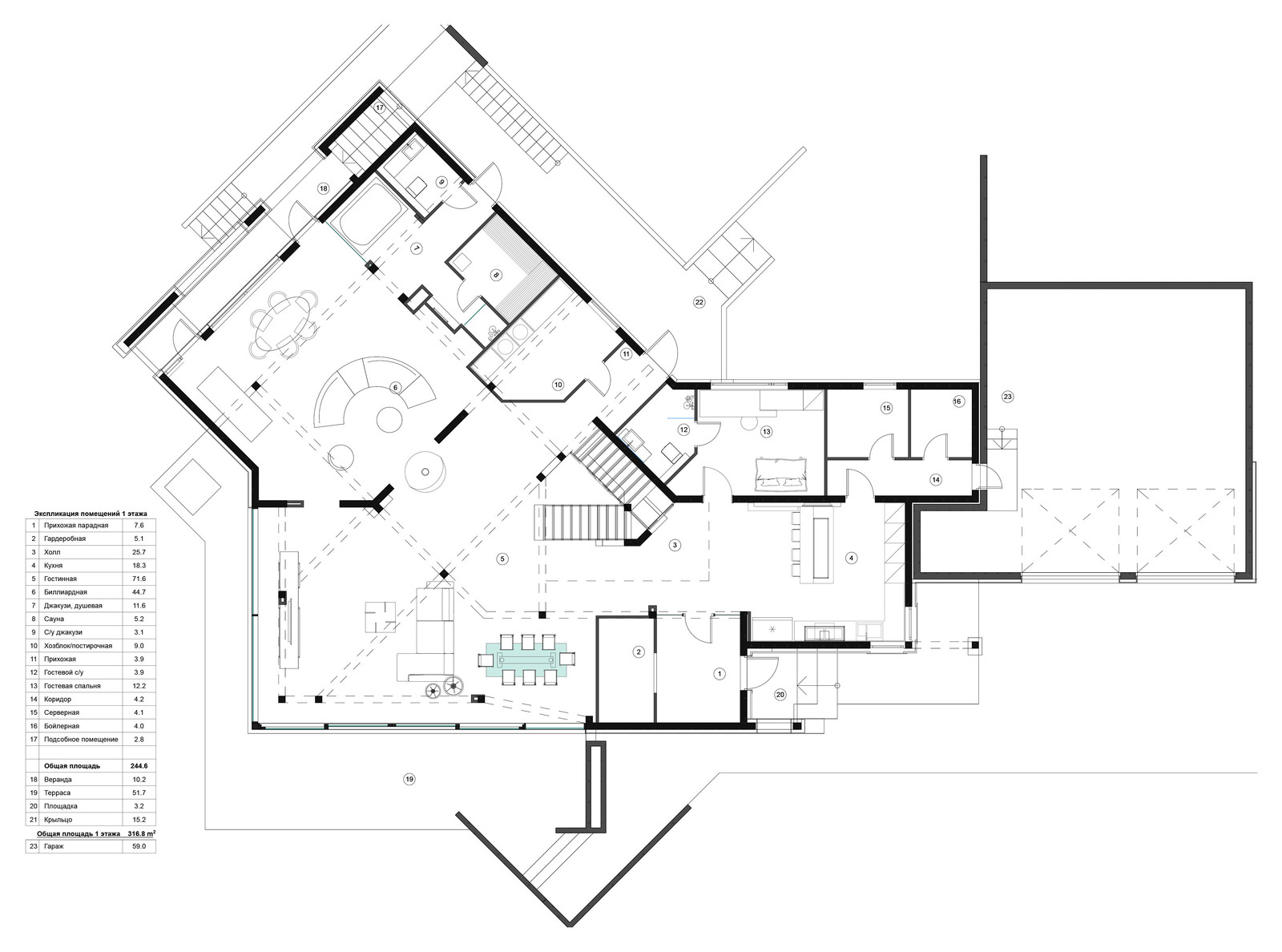
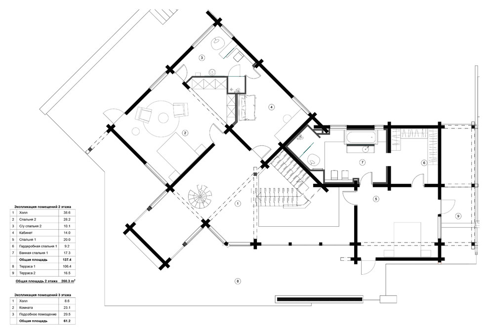
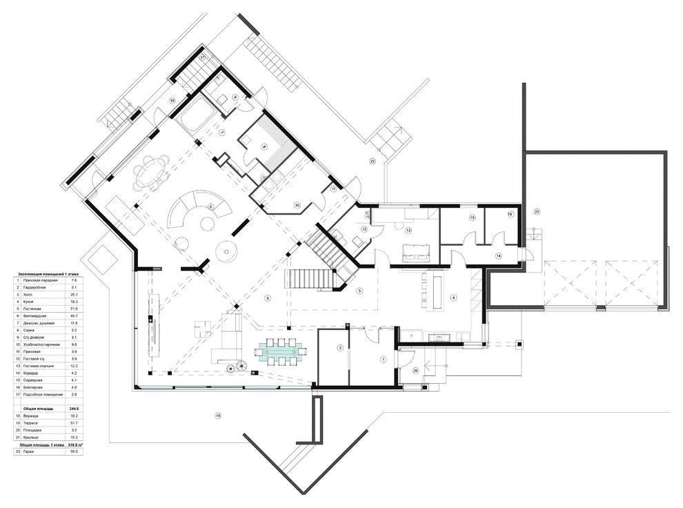
ЧАСТНЫЙ ЗАГОРОДНЫЙ ДОМ (жилой дом, гостевой дом, хоз.постройка и прилегающая территория) . . Ленинградская обл., Всеволожский р-он, вблизи пос. Токсово, коттеджный пос. "Русская Швейцария" . . площадь: 638,0 m2 . площадь участка: 35 соток . . проектирование: 2005 - 2013 . строительство: 2008 - 2013 . отделочные работы: 2010 - 2013 . строительство дополнительного хоз.блока: 2013 - 2014
Год реализации: 2015
45 фотографий













































