Дом в Терийоки
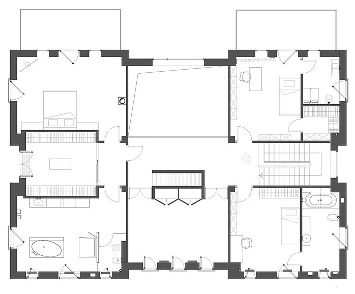
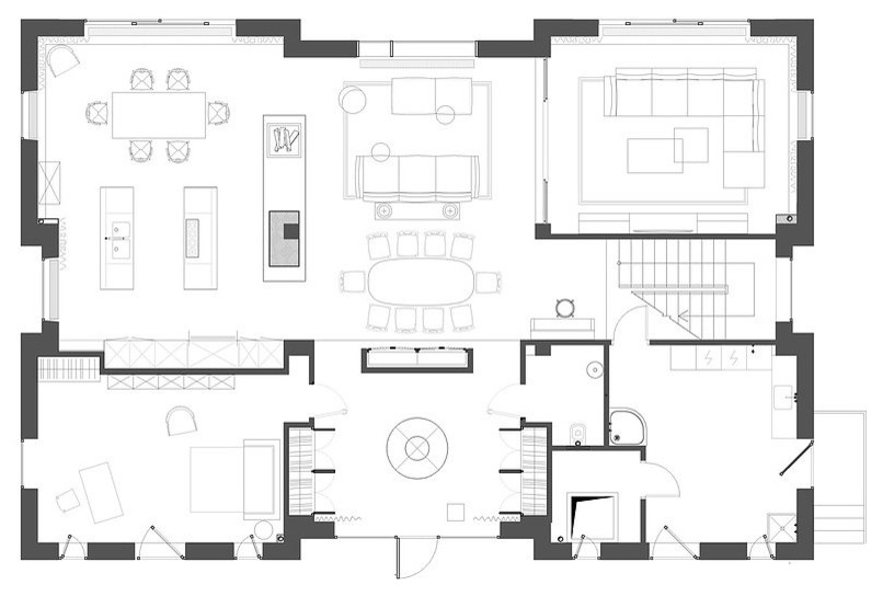
Загородный дом недалеко от Санкт-Петербурга. Просторный двухэтажный дом, построенный для семьи из четырех человек. На первом этаже пространство отдано под общие зоны (кухня-столовая, малая гостиная, большая гостиная), кабинет хозяина дома, гостевой с/у и техпомещения. На втором этаже находяться спальни с приватными санузлами, а также игровая и спортзал. . . S=350 м2
Год реализации: 2017
16 фотографий
















