Дом в Громово
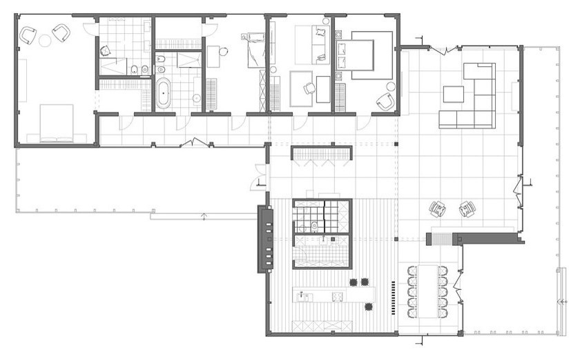
Загородный дом для большой семьи. Одноэтажный дом из клеенного бруса, выполнен по какркасной технологии. Имеет большую просторную гостиную с камином на просвет, который визуально отделяет от кухни-столовой. Спальни расположены вдоль длинного светлого коридора, окнами выходящие на озеро. . . S=320 м2
Год реализации: 2017
11 фотографий











