Дом в Салтыково
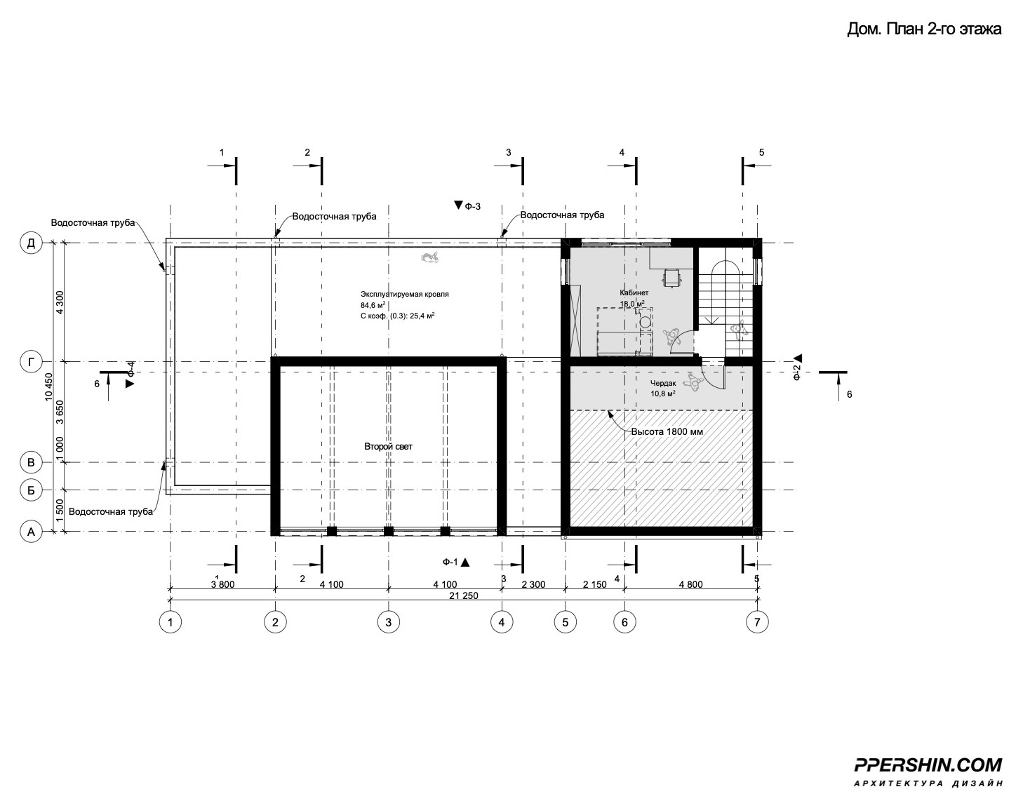
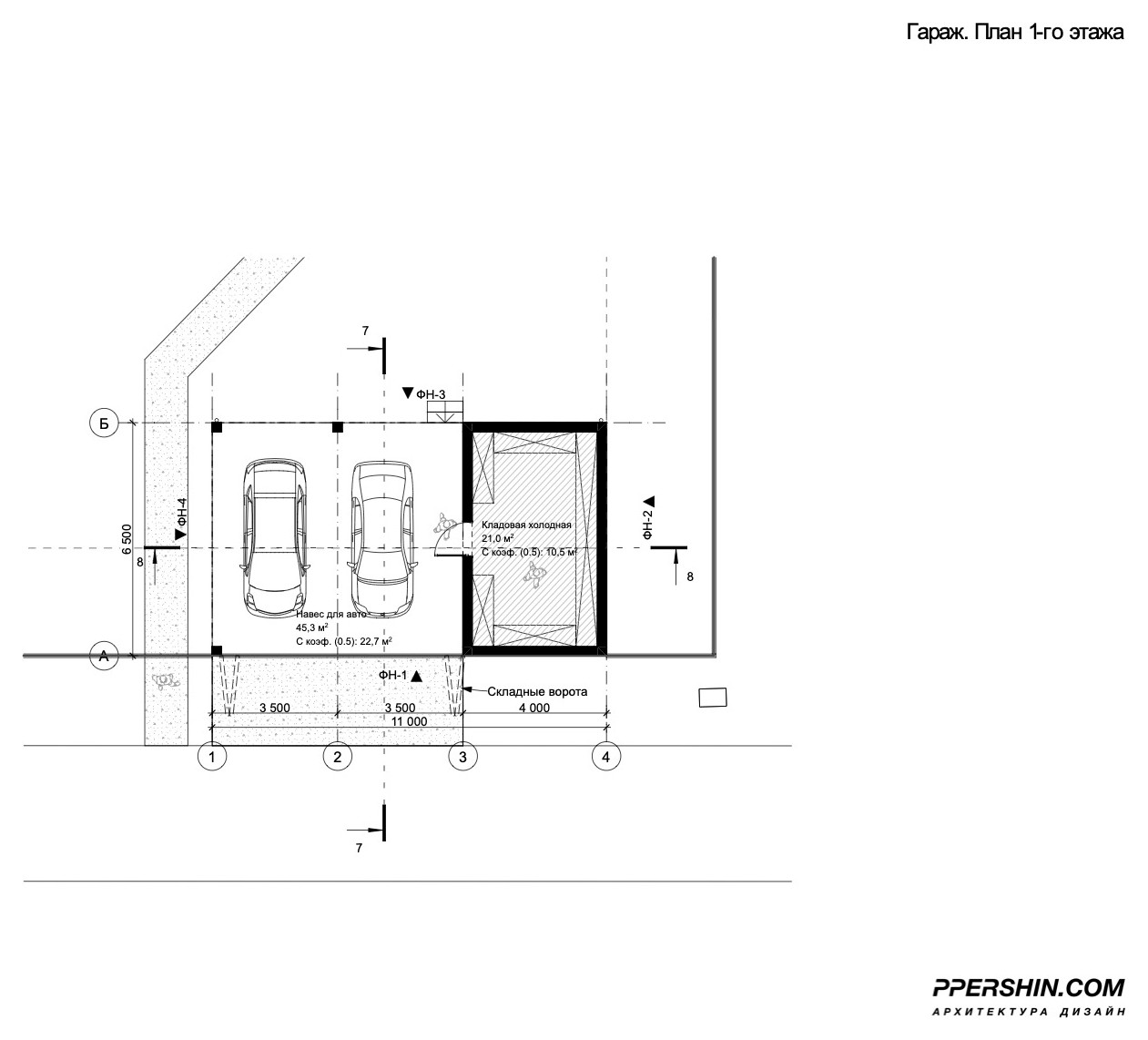
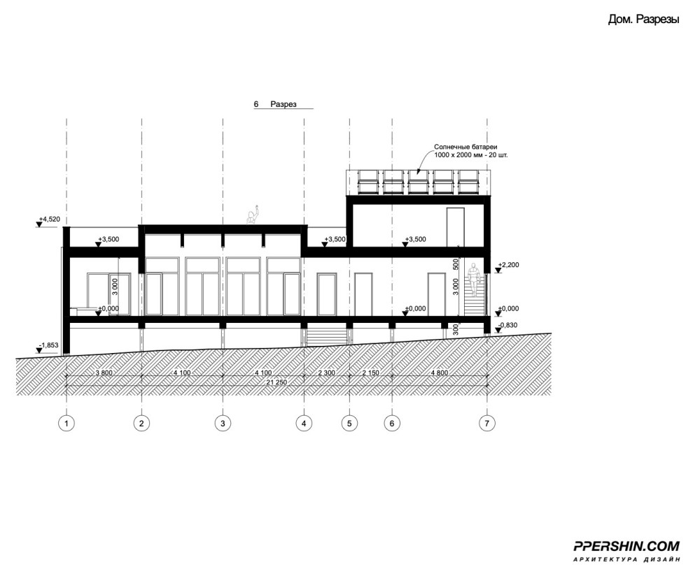
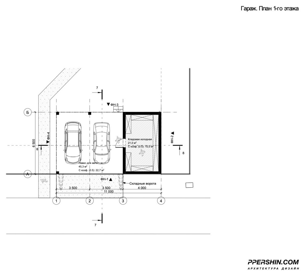
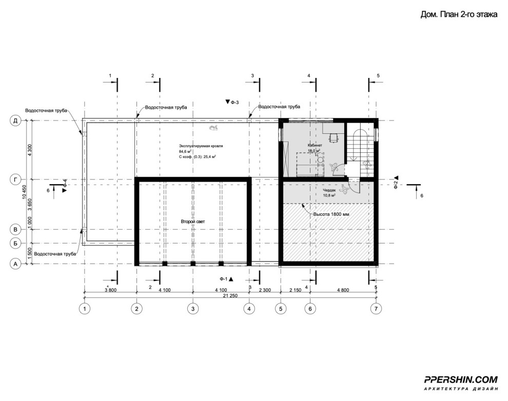
Дом в минималистичной архитектуре площадью 219 м2. . . Структура планировки. . Вид на реку - это основа структуры планировки дома. Минимум 4 помещения должны были быть ориентированы на реку, а также крытая терраса, поэтому дом получился вытянутым вдоль реки. С противоположной стороны вспомогательные помещения и вход, а также окна гостиной для захвата солнца. А так фактически весь дом ориентирован на реку. . . Особенности дома. . Необычная конфигурация кровли, чтобы добиться 2-х целей: функциональное удобство и оправданность; необычный образ. . Большая эксплуатируемая кровля с видом во все стороны участка. . Приватная крытая терраса, закрыта от соседей помещениями спален. . Солнечные батареи. Расположены на кровле кабинета и чердака, в котором можно расположить вспомогательное оборудование. . Движение на свет. Разумеется. . Минималистичная архитектура. Без лишнего, баланс элементов. . . Образ. . Асимметричные фасады, в которых есть и массивы стен, и окна балансируемые в них. Окна на всех фасадах разные, но имеют закономерности, повторения, соосность. Образ найден таким образом, чтобы: избежать ассоциаций, были сбалансированы напряженные места, в больших массивах стен были разбавляющие окна, на горизонтальных участках была горизонтальная динамика окон, на вертикальных участках была вертикальная динамика окон, но при этом всем, чтобы чувствовался баланс. . . Итогом служит простая, но при том необычная архитектура. Собрана из простых элементов. Без показухи и ерунды. Без декора. Это минималистичная архитектура.
24 фотографии
























