Дом в Муроме
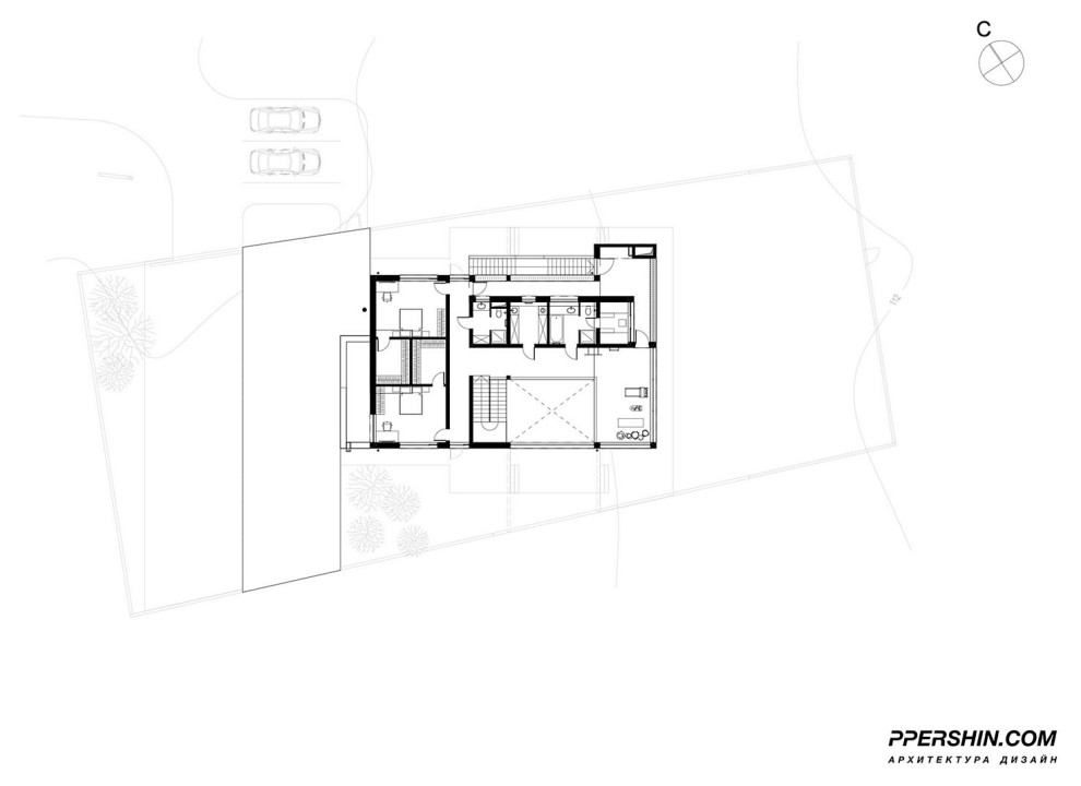
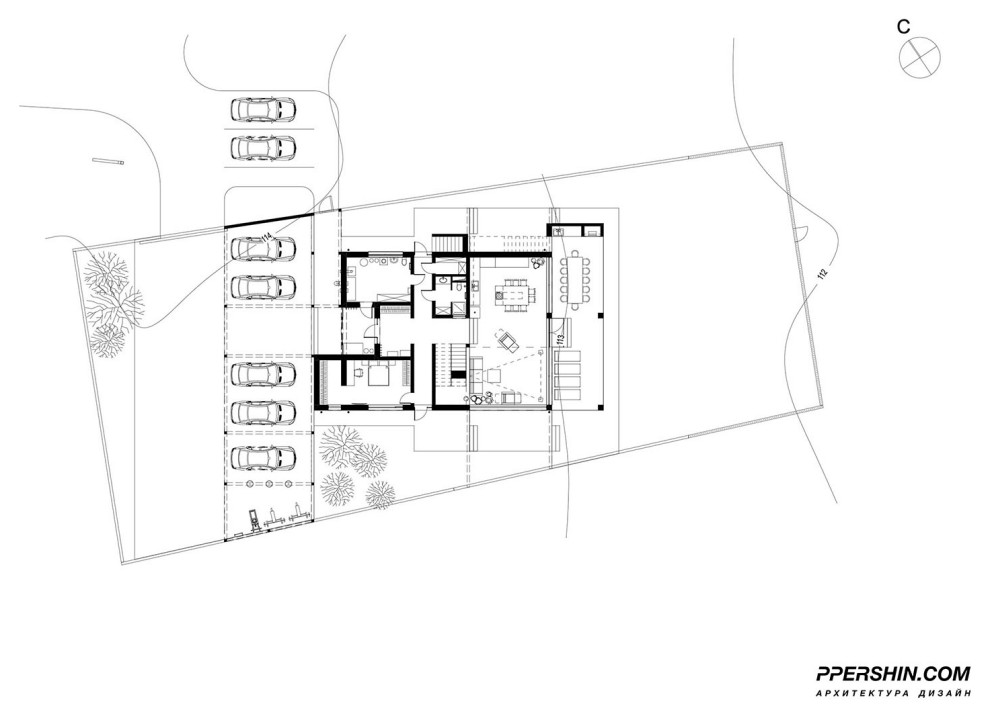
Дом в минималистичной архитектуре площадью 369 м2, 3 спальни, 3 санузла, спортзал, сауна, двусветная гостиная, совмещенная кухня-столовая, стена из стеклоблоков, балкон, наружная лестница, большая котельная, кладовая для кухни, холодный тамбур с раздвижными дверьми для охранной собаки, крытый двор и лучшие виды на Оку. . . На главном фасаде прием «сетка» с разными ширинами с доминантой-дымоходом-выходом на кровлю. Комбинация 2-х основных материалов: главный - штукатурка; дополнительный - бетон. Дом повернут на участке для создания лучших видов из основных помещений на изгиб реки Ока. . . Забор выполнен двумя сегментами: глухой бетонный со стороны подъезда, соседей и пром построек; просматриваемый из прутьев со стороны реки, природы и уклона рельефа вниз. Конструктив - монолитная ж/б плита с перепадами по участку, ж/б каркас с заполнением пеноблоками. Окна - стеклопакеты в алюминиевых профилях, стеклоблоки. . . Итого: минималистичная архитектура с ноткой промышленной постройки и с ноткой брутализма. Таким образом дом органично вписывается в окраину промзоны и в начало частного жилого сектора. Не каждый поймёт, что это жилой дом, в чем отчасти и была исходная задумка хозяев.
9 фотографий










