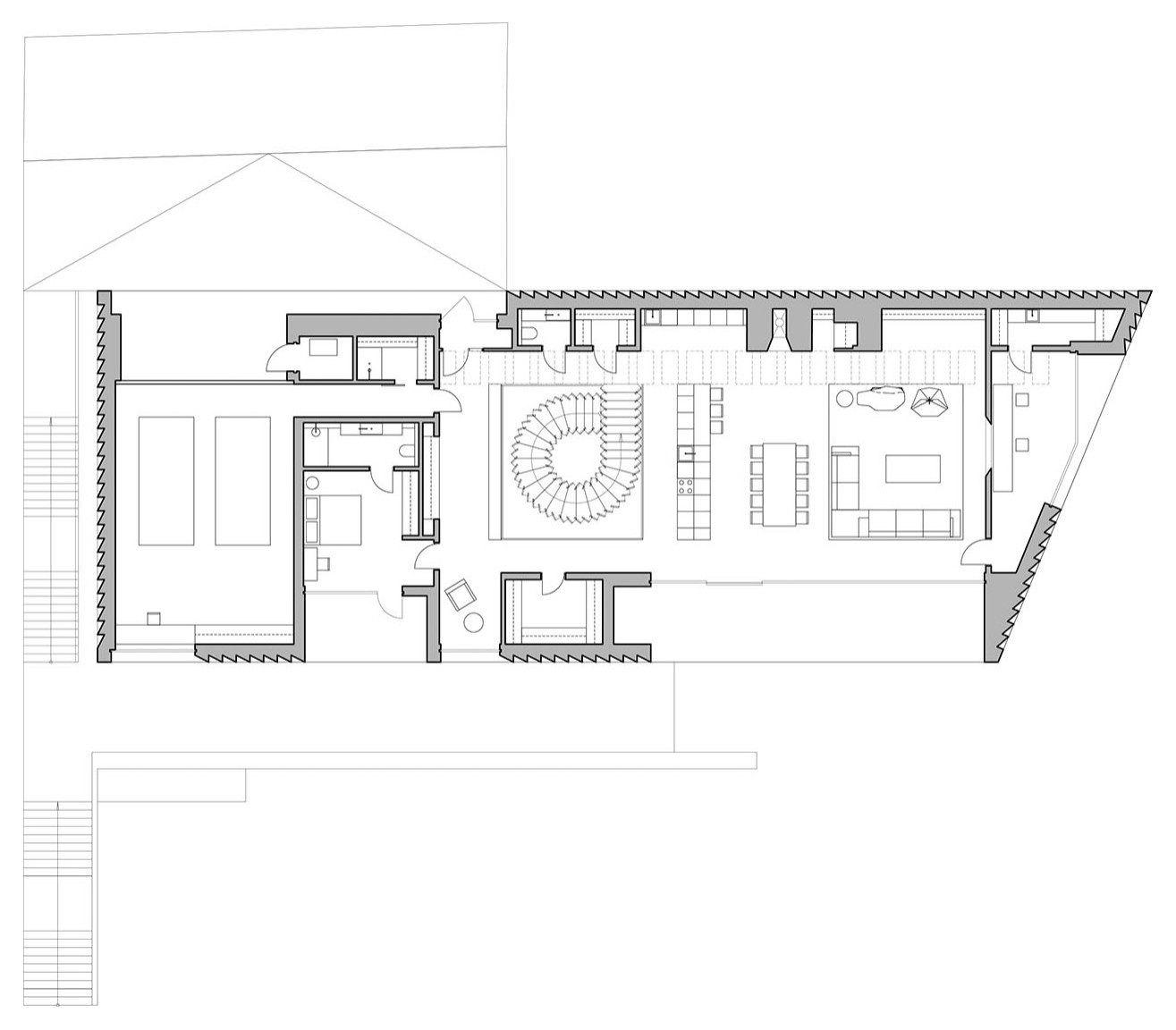
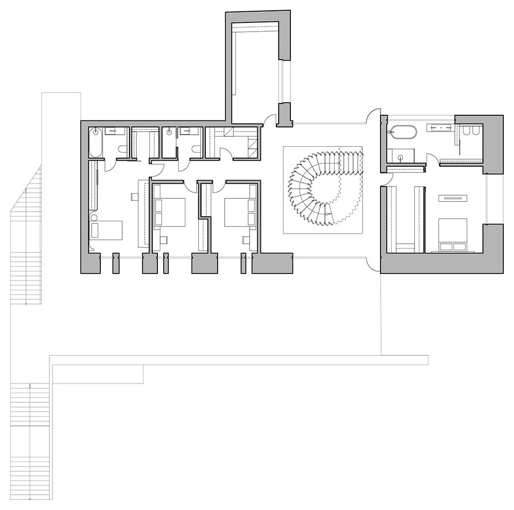
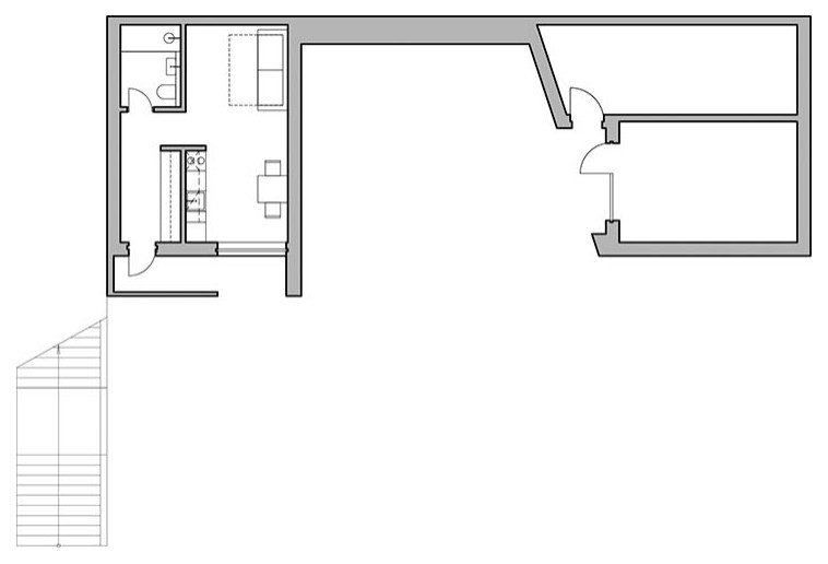
Дом в Барвихе
Архетипичные элементы интерьера апеллируют к храмовым ощущениям тишины и света, а отсылки к ремесленности и ручному производству соединяют актуальное с несовременным.
Год реализации: 2022
г. Москва, Центральный административный округ
25 фотографий

























