logo
ФотоЭкспертыСтатьи
Профиль пользователя

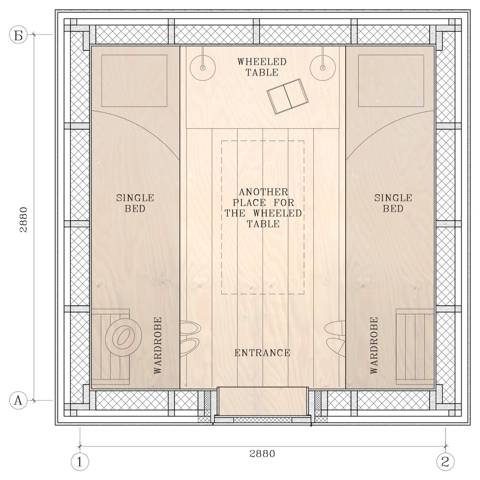
Дом с люстрой

Год реализации: 2017
Стоимость проектирования: 525 000 ₽
photo

1 фотография

Дом с люстрой
Дом с люстрой
Фоновое изображение профиля Семён Ельштейн
Фото профиля Семён Ельштейн

Семён Ельштейн

5

1 отзыв

Архитекторы

Контакты

г. Санкт-Петербург, Манежный переулок 3
О насМы в прессеFAQКонтакты
ВкДзенTelegramTelegram Pro
Pro
Instagram

Продукт компании Meta, признанной экстремистской организацией, деятельность которой запрещена в РФ

Связаться с поддержкой
Пользовательское соглашениеПолитика в отношении обработки персональных данных