Дом на Холме 2.0.
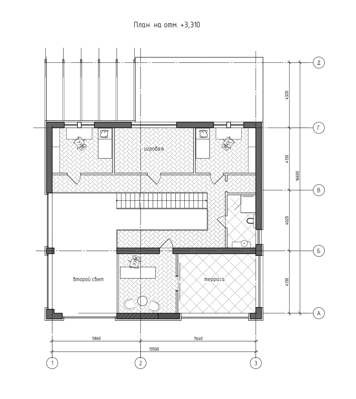
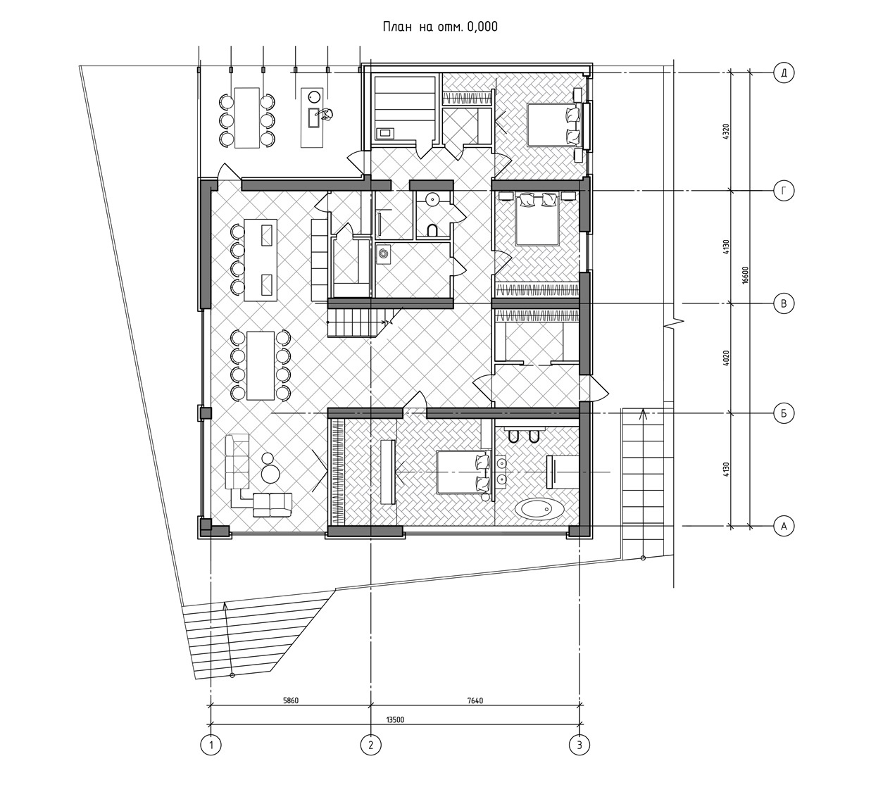
ЭТОТ ОРИГИНАЛЬНЫЙ, ПО МНЕНИЮ РЕДАКТОРОВ ЖУРНАЛА «ПРОЕКТ РОССИЯ», СОВРЕМЕННЫЙ ЧАСТНЫЙ ДОМ РАСПОЛОЖЕН В ЧЕРТЕ ГОРОДА. ВЛАДЕЛЬЦЫ ОЧЕНЬ ДОЛГО ИСКАЛИ УЧАСТОК БЛИЗ ЦЕНТРА, В ЧЕРТЕ ГОРОДА И РЯДОМ С ЛЕСОМ. ДОСТАЛСЯ СОВСЕМ НЕБОЛЬШОЙ УЧАСТОК ЗЕМЛИ ПЛОЩАДЬЮ 750 КВ.М.
Год реализации: 2026
Стиль: Современный
г Саратов
12 фотографий













