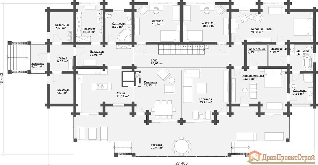
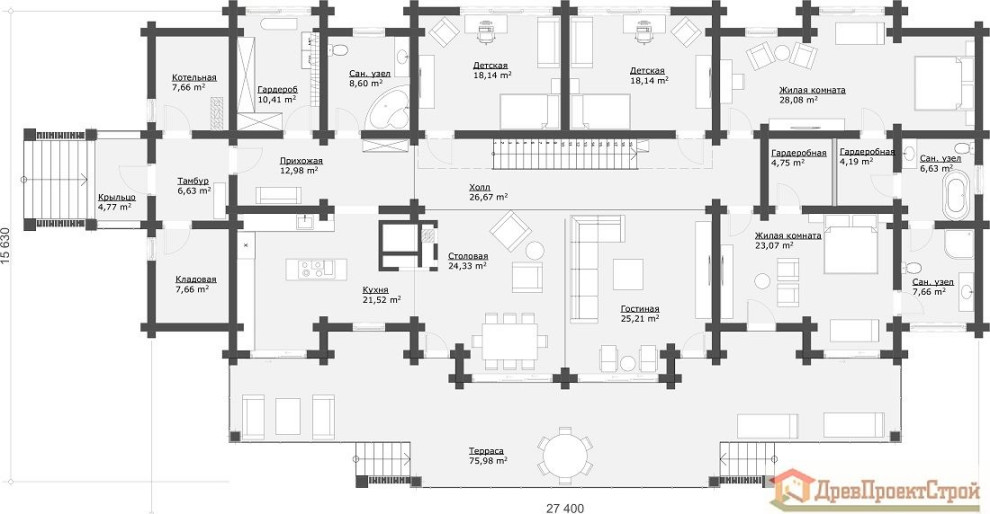
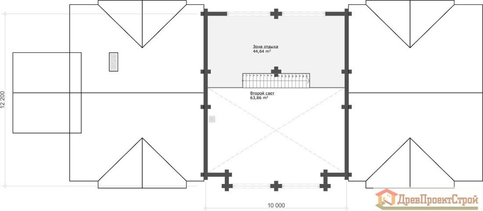
Дом из оцилиндрованных бревен 443,92м². Размеры 27400 х 15630.Проект № 307
Год реализации: 2018
Стоимость проектирования: 12 250 000 ₽
г. Сочи
9 фотографий
9 фотографий

Отделочные работы в доме из оцилинлрованного бревна диаметр 320мм в Санкт Петерб
Проект бани № 5. Баня из оцилиндрованных бревен 59,19м², 10000 х 7000.
Проект бани № 4. Баня из оцилиндрованных бревен 64,60м², 8000 х 10600.
Проект бани № 154. Баня из бруса массива естественной влажности 140 х 140,
Дом из оцилиндрованных бревен 480,69м². Размеры 17400 х 22900. Проект № 308
Проект бани из бруса массива естественной влажности № 158
Проект дома из оцилиндрованных бревен №279