Дом из оцилиндрованных бревен 443,92м². Размеры 27400 х 15630.Проект № 307
Алексей Викторович Левкин

Алексей Викторович Левкин

Проектирование и строительство

0

Дом из оцилиндрованных бревен 443,92м². Размеры 27400 х 15630.Проект № 307

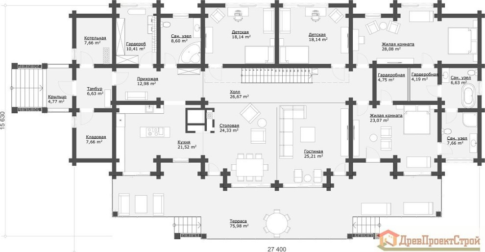
Дом из оцилиндрованных бревен 443,92м². Размеры 27400 х 15630. . . 1 этаж 335,42м². Крыльцо 4,77м², Кладовая 7,66м², Тамбур 6,63м², Гардероб 10,41м², Прихожая 12,98м², Кухня 21,52м², С/у 8,60м², Детская 18,14м², Детская 18,14м², Холл 26,67м², Столовая 24,33м², Гостиная 25,21м², Жилая комната 28,08м², Гардеробная 4,75м², Гардеробная 4,19м², С/у 6,63м², Жилая комната 23,07м², С/у 7,66м², Терраса 75,98м². . 2 этаж 108,50м². Второй свет 44,58м², Гардероб 8,86м², Холл 30,77м², Спальня 17,58м², С/у 5,46м², Спальня 24,97м², С/у 6,76м², С/у 7,33м², Гардероб 6,77м², Спальня 23,23м², Балкон 7,93м². . . - Варианты изготовления стенового комплекта оцилиндрованное бревно естественной и камерной сушки от Ø- 200 до Ø-400 мм. . -Брус массив профилированный естественной и камерной сушки. . -Ручная рубка. . - Брус клееный. . - Карельская сухостойная сосна «Кело», г. Костомукша. . Производства ООО ПСК «ДревПроектСтрой». . .

Другие фотографии в проекте

Вопросы к фото 0

Задайте вопрос

Вам ответят эксперты. Пришлем уведомление, когда вам ответят