Дом из бруса, 310м2. Дизайн и реализация интерьера
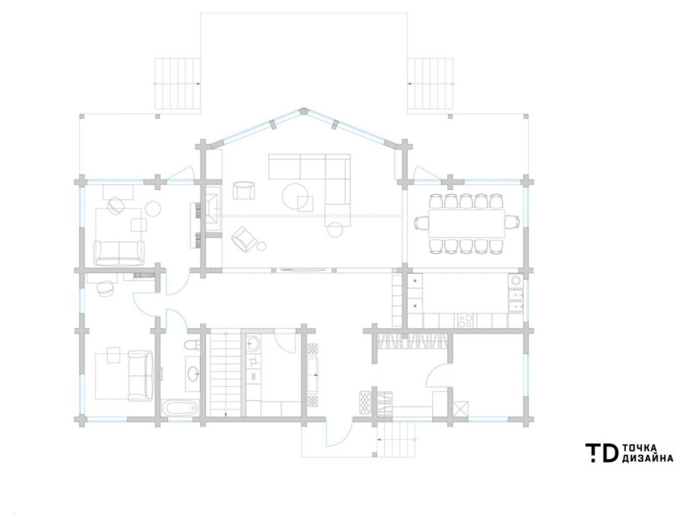
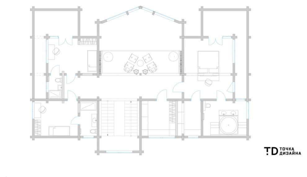
Дизайн-проект двухэтажного дома из бруса для семейной пары с двумя детьми. Элементы стиля шале (характерные балки из бруса и деревянные детали в отделке), органично сочетаются здесь с традициями лофтовых пространств. О причастности к последним особенно напоминают объединённое просторное помещение кухни, столовой и гостиной, высокие потолки и большие окна. . . Статья о проекте https://www.houzz.ru/statyi/houzz-tur-dom-iz-brusa-s-interyerom-ne-kak-u-vseh-stsetivw-vs~131094499?utm_source=Houzz&utm_campaign=u13269&utm_medium=email&utm_content=gallery5_6&newsletterId=13269
Год реализации: 2020
Стоимость проектирования: 12 250 000 ₽
г. Москва, Центральный административный округ
24 фотографии

























