
Дизайнеры интерьера
4.91
·
47 отзывов
Дом из бруса, 310м2. Дизайн и реализация интерьера
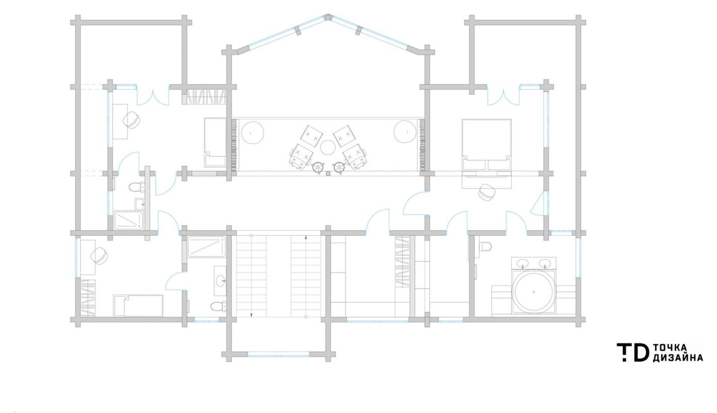
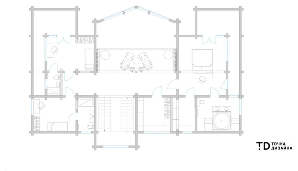
План 2ого этажа . . Тип недвижимости: загородный дом . . Где находится: коттеджный поселок Аквавилла, Московская область . . Метраж: 310 м² . . Стиль: современный . . Основная идея проекта: лаконичное, функциональное и комфортное пространство для большой семьи . . Цветовая гамма: «сочетание светло-серых и шоколадных оттенков, такая цветовая гамма создает уют и умиротворенность в интерьере» . . Авторы проекта: студия Точка дизайна
Вопросы к фото 0
Задайте вопрос
Вам ответят эксперты. Пришлем уведомление, когда вам ответят