Дом Эрмитаж
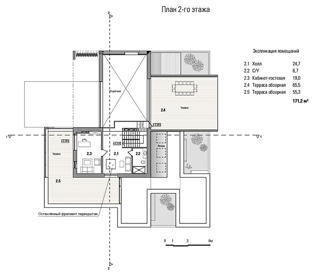
Жилой дом для семьи, ценящей личное пространство . Название дома происходит от французского слова ermitage — место уединения. . В объёмно-пространственной композиции дома выделяются две зоны- публичная и приватная. . Кухня, столовая и гостиная расположены в двухсветном объёме, к которому примыкает терраса с зоной барбекю. Спальни находятся на первом этаже в одноэтажной части. При каждой спальне имеется небольшой закрытый дворик для физических упражнений на свежем воздухе, загорания, медитации и общения с природой. Большие витражи спален способствуют ощущению близости окружающей природе.
Год реализации: 2024
13 фотографий














