
Архитекторы
0
Дом Эрмитаж
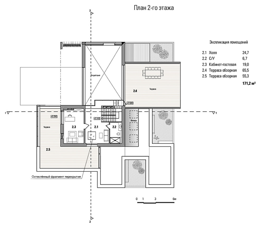
На втором этаже располагается кабинет, холл и две террасы. Рядом с кабинетом устроена терраса для наблюдения закатов,а с противоположной стороны- обзорная терраса. . В полу холла 2-го этажа есть остеклённый фрагмент, который позволяет создать дополнительную подсветку холла 1-го этажа. . В тихой зоне расположены три спальни- две детские и мастер-спальня. Санузлы при спальнях освещаются через световой фонарь в крыше.
Другие фотографии в проекте
Вопросы к фото 0
Задайте вопрос
Вам ответят эксперты. Пришлем уведомление, когда вам ответят




