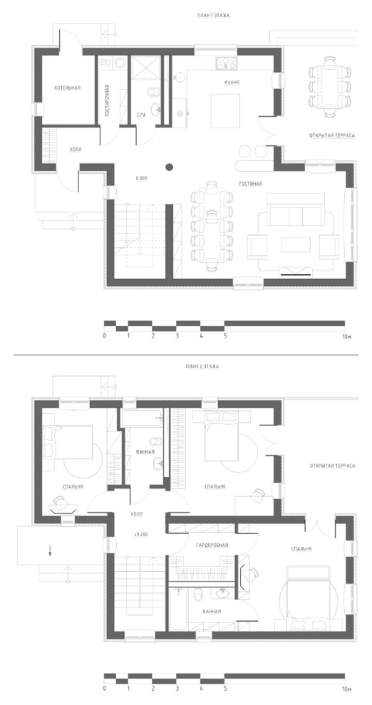
Дом для молодой семьи

Современный 2-х этажный загородный дом для одной семьи.

Год реализации: 2016
Стоимость проектирования: 5 250 000
г. Москва, Центральный административный округ
photo

5 фотографий

Дом для одной семьи
Дом для одной семьи
Коттедж К-155
Коттедж К-155
Дом для одной семьи
Дом для одной семьи
Дом для одной семьи
Дом для одной семьи
Дом для одной семьи
Дом для одной семьи