
Архитекторы
4.67
·
10 отзывов
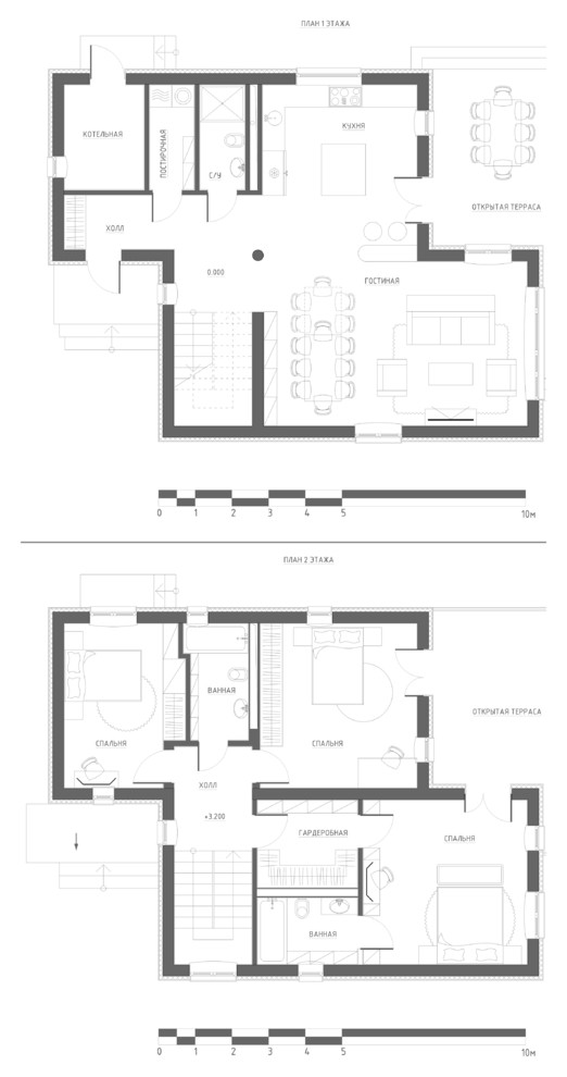
Дом для молодой семьи
Современный 2-х этажный загородный дом для одной семьи.
Другие фотографии в проекте
Вопросы к фото 0
Задайте вопрос
Вам ответят эксперты. Пришлем уведомление, когда вам ответят

Архитекторы
4.67
·
10 отзывов
Современный 2-х этажный загородный дом для одной семьи.
Другие фотографии в проекте
Вам ответят эксперты. Пришлем уведомление, когда вам ответят