Для счастливой жизни. Проект квартиры 90 м2.
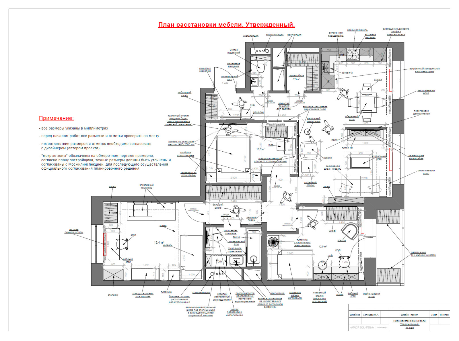
Общая площадь квартиры: 90 м2 . Высота потолка (в проекте): 2,62 м . Территориальное местоположение: Московская обл., г. Балашиха, мкр. Железнодорожный . Год создания дизайн-проекта: июль 2020 г. . Бюджет проекта (декоративные отделочные материалы, мебель, свет и тд.): 3 800 000 руб. . Бюджет ремонтных работ (плюс черновые материалы): 1 600 000 руб. . . Этот дизайн-проект квартиры стал для нашей студии особенным. Сотрудничество с заказчиками было очень приятным и продуктивным. Молодой семейной паре с двумя детьми нравились практически все наши идеи, на которые они сразу безоговорочно соглашались. Тем самым нам не нужно было беспокоиться об утверждении концепций интерьера с заказчиками, и мы сосредотачивались максимально на вопросах качественного проектирования пространства. . Изначально от застройщика квартира предполагалась, как трехкомнатный объект общей площади 90 м2. Наши клиенты очень хотели максимально просторную и объединенную планировку кухни-гостиной, отдельную небольшую спальню, две детские комнаты, гардеробную, сохраняя мокрые зоны помещений ванной комнаты и туалета. Нам удалось в точности разработать интерьер, согласно всем их ожиданиям и образу жизни. . . Общая стилистика интерьера была выбрана современная эклектика. Основным пожеланием заказчиков в отделке было как можно больше светлых тонов и наличие натуральных материалов. Поэтому в качестве общей основы отделки стен был взят совсем светло-серый цвет с добавлением бирюзовых, розовых и голубых оттенков по разным помещениям, деревянных светлых тектур и серого бетона в качестве стильных акцентов для разнообразия. За основное напольное покрытие была выбрана трехполосная паркетная доска насыщенных медово-коричневых оттенков. Во всех же мокрых зонах, включая часть кухни, а также в прихожей на полу мы сделали стильную раскладку керамогранита. . . Очень стильным архитектурным дополнением к просторной планировке основного помещения квартиры кухни-гостиной стала стеклянная угловая перегородка в стиле лофт, отделяющая маленькую, но очень уютную спальню. Мы выбрали прозрачный тип стекол, чтобы дневной свет из двух окон смежной комнаты с легкостью проникал в небольшую зону отдыха хозяев квартиры. При необходимости уединиться в спальне, мы повесили светлые декоратиные портьеры и, чтобы визуально увеличить пространство данного помещения, использовали зеркальные панели на стенах и много декоративного интересного освещения. . . Хочется еще отдельно немного рассказать о кухне-гостиной. Помещение является общим, но разделено функциональной отдельной перегородкой на две важные зоны: обеденную и для просмотра ТВ. Композиция кухонной мебели не громоздкая очень компактная, в ней предусмотрена только самая необходимая бытовая техника и удобное пространство для приготовления пищи. Антресольные шкафы позволяют максимально использовать места для хранения кухонной утвари. Гостиная получилась очень комфортной: на большом диване может разместиться целая семья для совместного времяпрепровождения, а дополнительно рядом мы разместили уютную зону для чтения с мягким креслом и напольным светильником, где можно просто приятно попить кофе или полистать любимый журнал. Стена за диваном получилась очень функциональной. Мы ее достроили искусственным образом, спроектировав вместительные ниши, где заказчики в будущем смогут разместить любые памятные фотографии в рамочках, а также сувениры, привезенные из поездок. . . Гардеробная комната, как мечтали заказчики, была спроектирована, но получилась очень маленькая. Это не помешало ей быть очень удобной и функциональной. В качестве мебели мы использовали навесную шведскую систему полок, контейнеров, штанг и ящиков. . . Детские комнаты были спроектированы по-настоящему волшебными, учитывая пожелания об идельном пространстве каждого из детей: 15-ти летней девочки и 4-х летнего мальчика. . . В основе концепции комнаты дочки стилизованный интерьер под современные молодежные пространства в Англии. Колористическая задумка получилась сдержанная с розовыми и серыми оттенками, плюс мы добавили светлых деревянных текстур, флизелиновые обои с текстурой "шеврон" на одной стене и золотистые цвета ввиде акцентов. Модный настенный декор постерами английской тематики украсил подростковую комнату девочки и сделал ее неповторимой. . . Концепция детской для сына получилась не менее интересной. Самой привлекательной частью отделки стала акцентная стена с настоящей ручной росписью в современном стиле. Мы выбрали абстрактный рисунок, который лег в основе колористической схемы. Гармоничные цвета молочно-бежевых, голубых, синих и сероватых оттенков идеально подошли для детской комнаты мальчика. Мебель в этой комнате мы использовали не очень дорогую, но довольно пеструю, а основной акцент сделали на размещение разнообразного декоративного и функционального освещения: подвесного, настенного и встроенного.
29 фотографий































