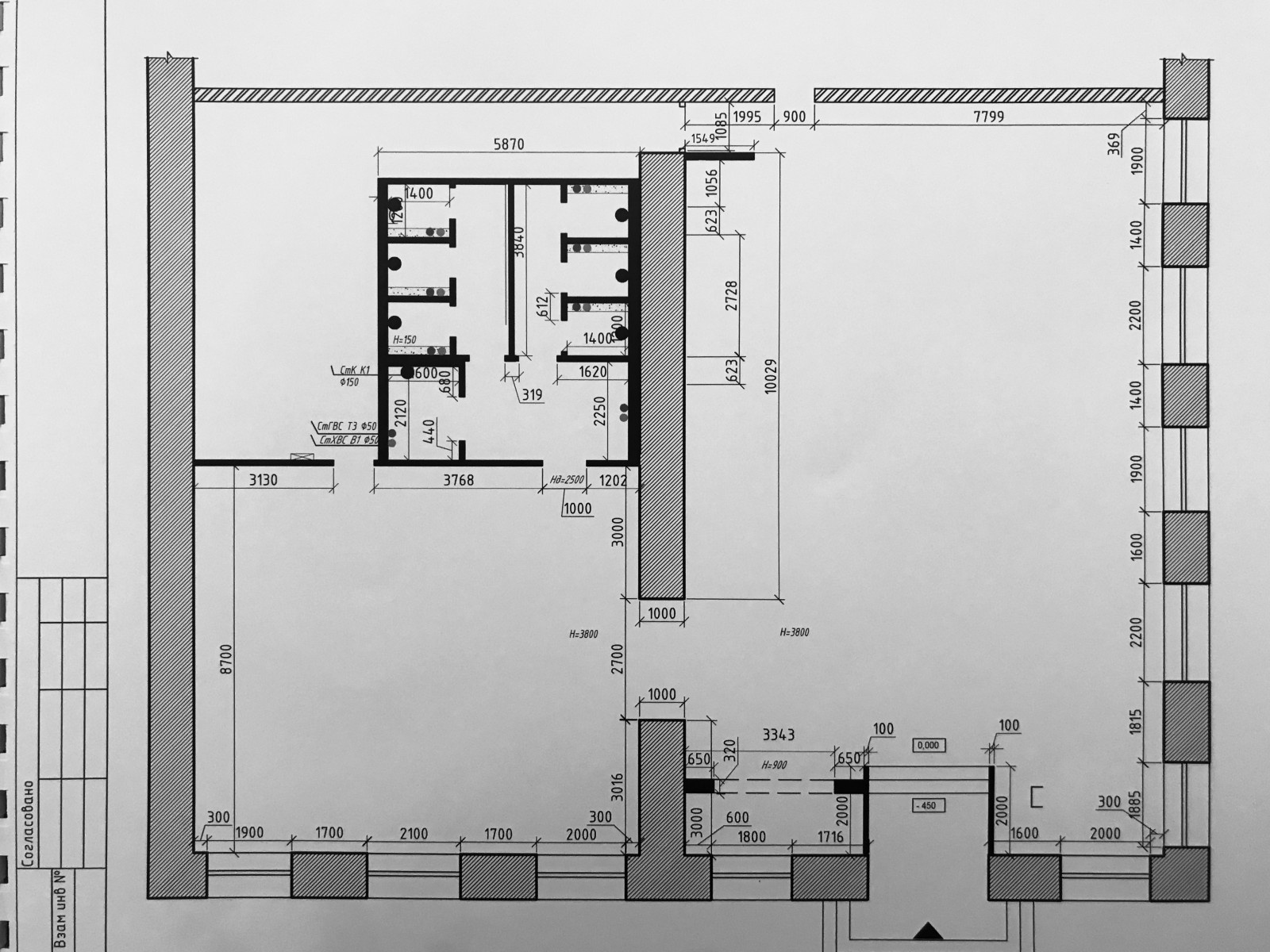
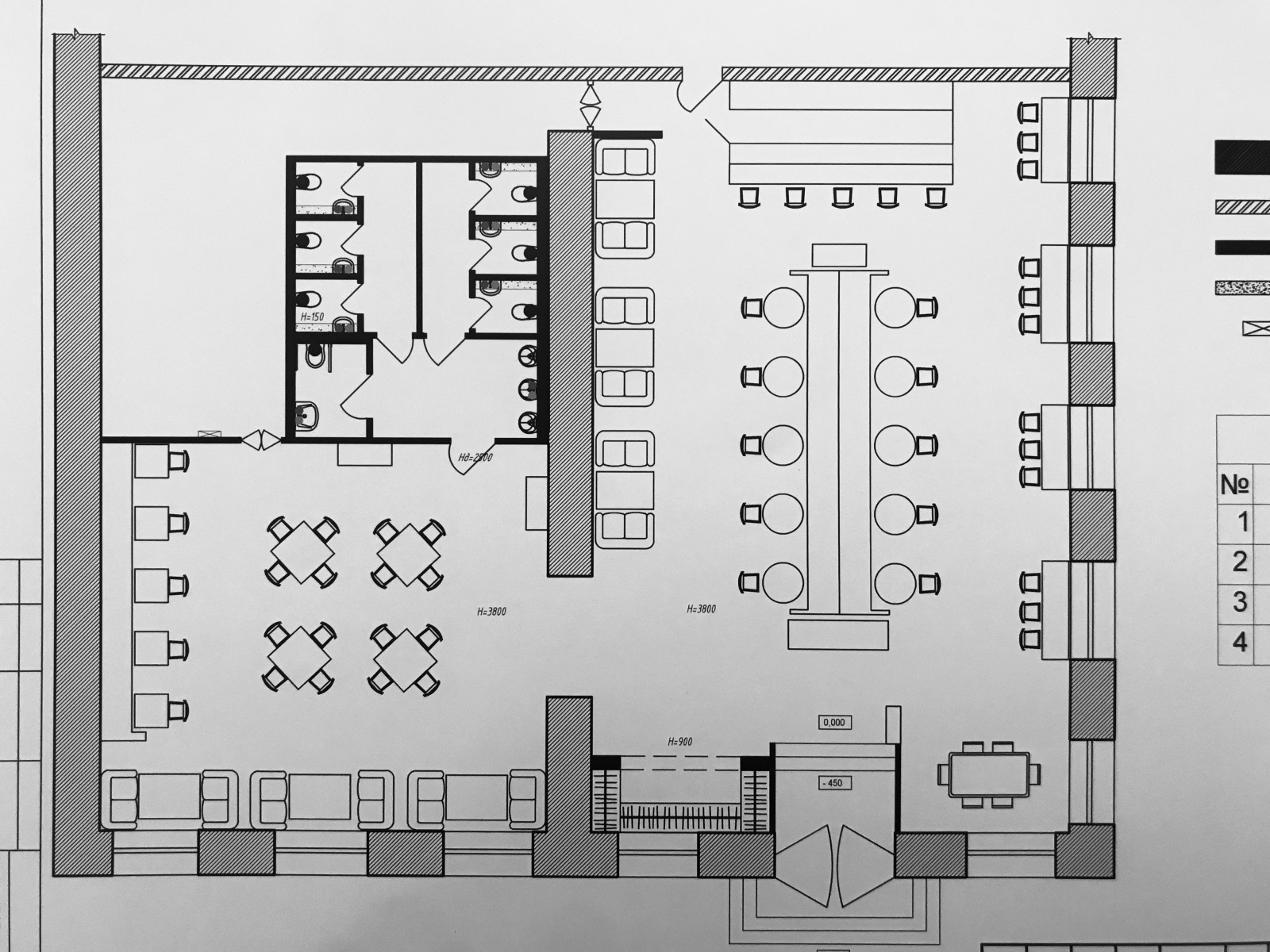
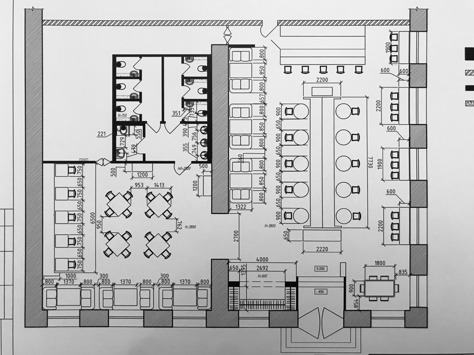
Профиль пользователядизайн- проект ресторана "Peony"Год реализации: 201915 фотографийПоделитьсяСохранитьПлан размещения электроосветительного оборудованияПоделитьсяСохранитьПлан пола с расстановкой мебелиПоделитьсяСохранитьПлан с расстановкой мебели и оборудования с размерамиПоделитьсяСохранитьПлан с расстановкой мебели и оборудованияПоделитьсяСохранитьмонтажный планПоделитьсяСохранитьвизуализацияПоделитьсяСохранитьвизуализацияПоделитьсяСохранитьвизуализацияПоделитьсяСохранитьвизуализацияПоделитьсяСохранитьвизуализацияПоделитьсяСохранитьвизуализацияПоделитьсяСохранитьвизуализацияПоделитьсяСохранитьвизуализацияПоделитьсяСохранитьвизуализацияПоделитьсяСохранитьвизулизацияПоделитьсяСохранить