Дизайн-проект квартиры в ЖК Городок Чекистов
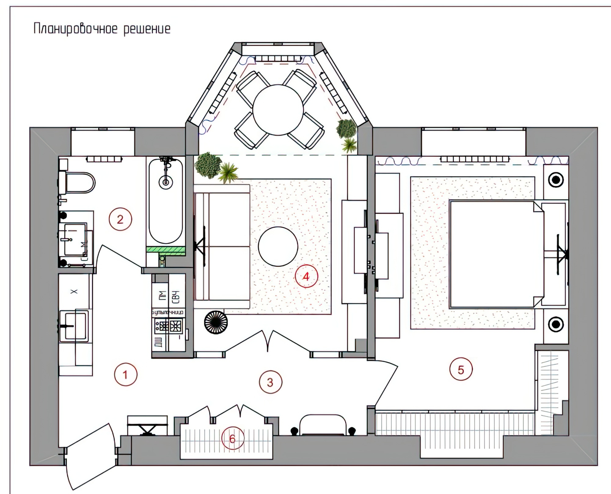
Жилой комплекс "Городок чекистов" на улице Ленина, 69 в Екатеринбурге — историческое здание советской эпохи с уникальным шармом. Как дизайнеру, мне было интересно работать над проектом в классическом стиле, подчеркивающем богатую историю и традиции этого дома. В этом здании не предусмотрена кухня, и было сложно организовать её пространство на таком маленьком участке квартиры, но мне удалось справиться с этой задачей. Проект принят клиентом и ждет начала реализации.
Год реализации: 2026
Стоимость проектирования: 120 000 ₽
Стиль: Классический
г Екатеринбург, пр-кт Ленина, д 69
27 фотографий



























