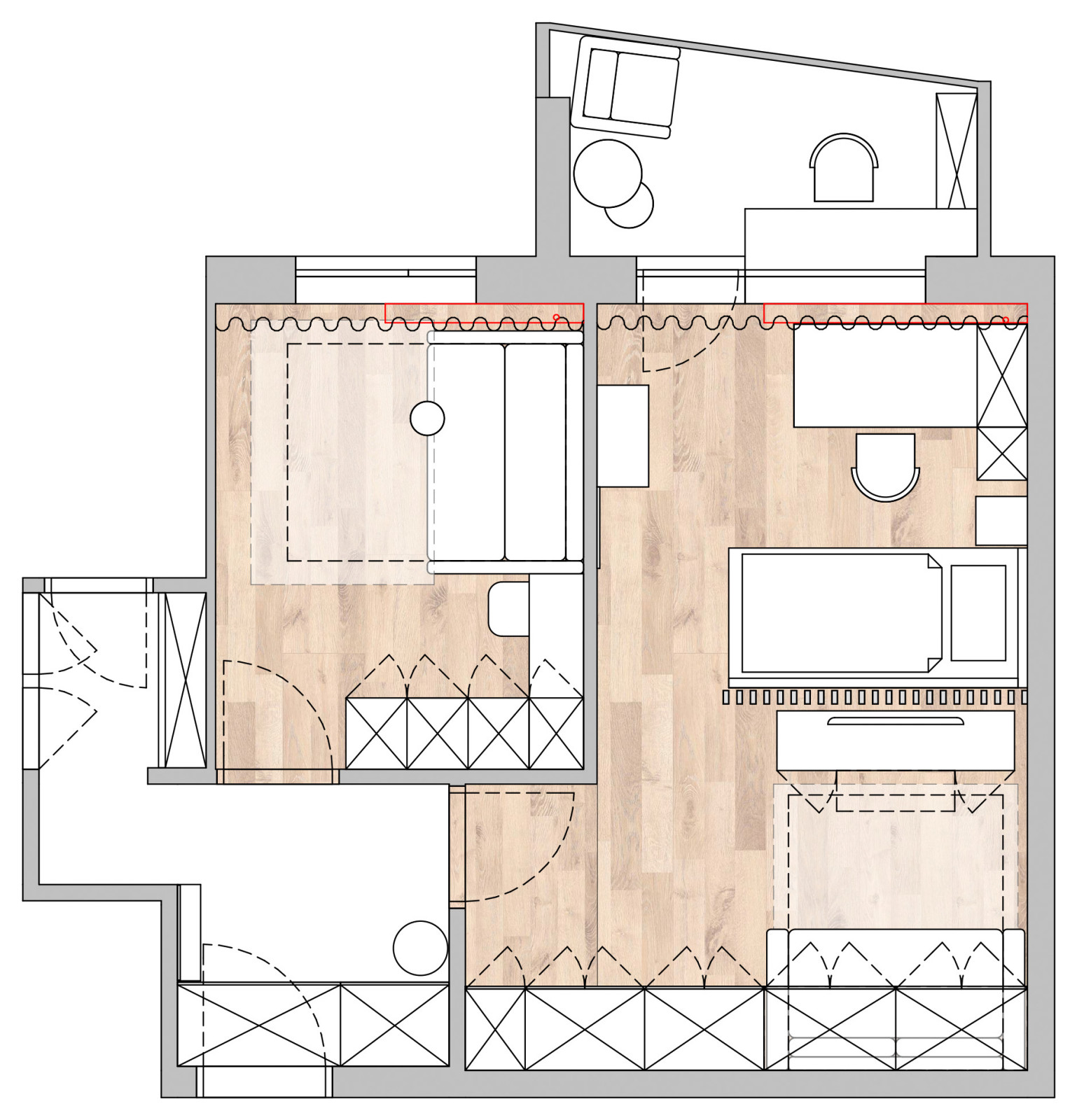
Профиль пользователяДизайн-проект квартиры, г. Москва, ул. ЯсеневаяГод реализации: 2023Стиль: Современныйг. Москва20 фотографийПоделитьсяСохранитьПлан расстановки мебелиПоделитьсяСохранитьПрихожаяПоделитьсяСохранитьПрихожаяПоделитьсяСохранитьПрихожаяПоделитьсяСохранитьСпальняПоделитьсяСохранитьСпальняПоделитьсяСохранитьСпальняПоделитьсяСохранитьСпальняПоделитьсяСохранитьСпальняПоделитьсяСохранитьСпальняПоделитьсяСохранитьСпальняПоделитьсяСохранитьДетская для девочкиПоделитьсяСохранитьДетская для девочкиПоделитьсяСохранитьДетская для девочкиПоделитьсяСохранитьДесткая для девочкиПоделитьсяСохранитьГостинаяПоделитьсяСохранитьГостинаяПоделитьсяСохранитьГостинаяПоделитьсяСохранитьГостинаяПоделитьсяСохранитьСпальняПоделитьсяСохранить