Другие фотографии в проекте Дизайн-проект квартиры, г. Москва, ул. Ясеневая
Ещё 12 фото
Сначала новые
Вам ответят эксперты. Пришлем уведомление, когда вам ответят
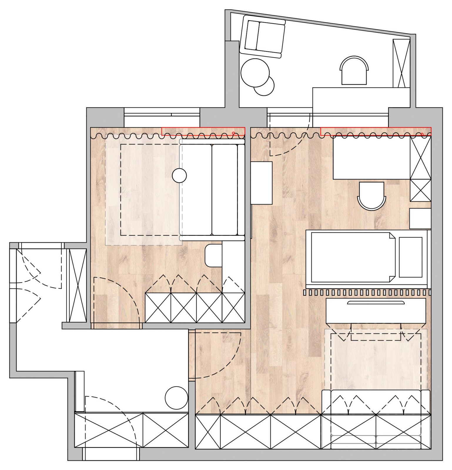
Домодедово, Контемпорари, квартира, план
Валерия Асанова
Дизайнеры интерьера
2
отзыва
5
Рейтинг
Контемпорари
Домодедово