Дизайн-проект квартиры для молодой семьи
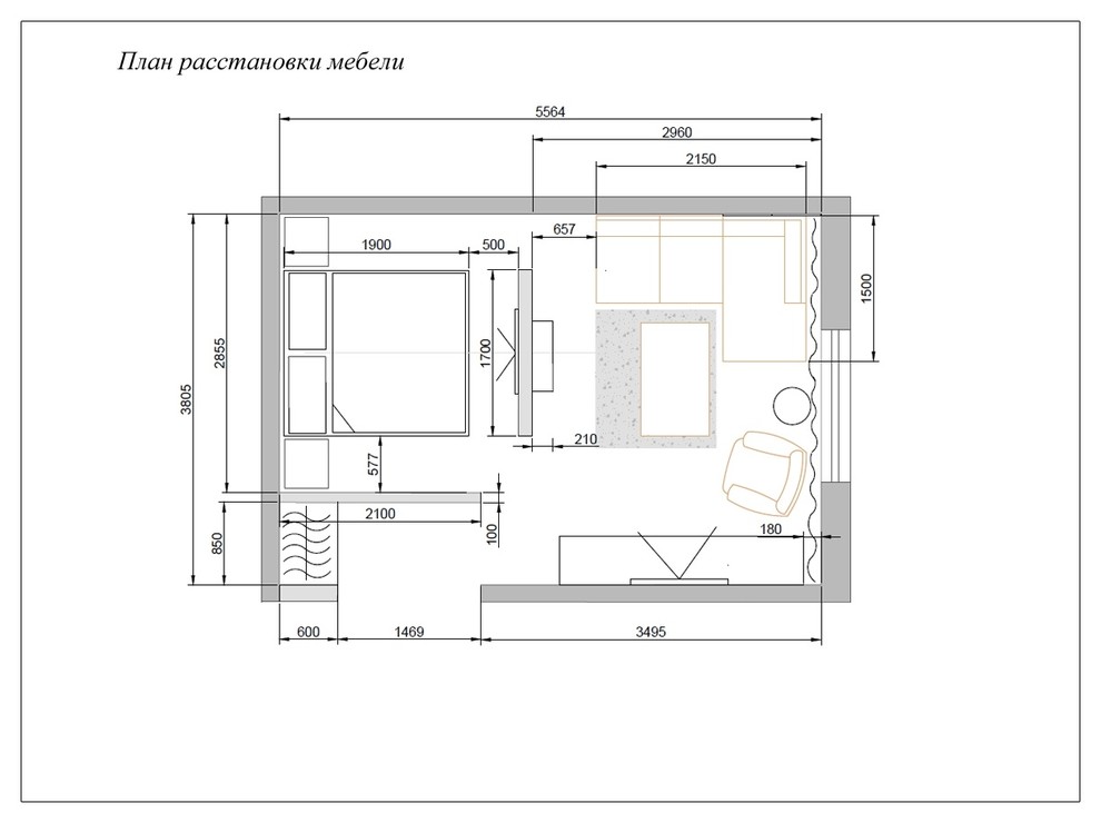
Гостиная, совмещенная со спальней, одно из самых частых дизайнерских решений в квартирах-студиях . . По техническому заданию заказчика в одной комнате необходимо было совместить гостиную и спальню, желательно с большой и удобной кроватью. В ходе работы было рассмотрено несколько вариантов перепланировки и расстановки мебели. Чтобы не нарушить эргономику, тщательно продумывался каждый сантиметр жилого пространства. В результате получился комфортный и логичный интерьер. Перегородка , которая отделяет спальную зону от гостиной является одновременно и функциональной. Со стороны спальни на ней расположен телевизор, со стороны гостиной - камин, придающий интерьеру уют. Высокий шкаф-пенал рядом с кроватью над тумбочкой дают возможность положить все необходимые личные вещи отдельно каждому члену семьи. Белый глянцевый цвет фасадов делает интерьер легким. Стильное, удобное дизайнерское кресло Egg от Arne Jacobsen лаконично вписывается в современный минималистичный интерьер.
6 фотографий







