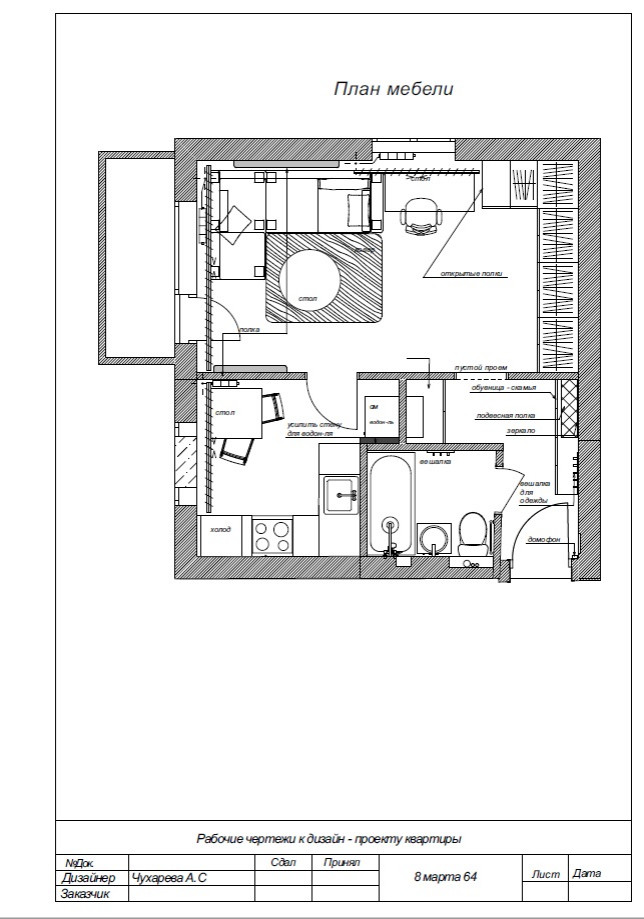
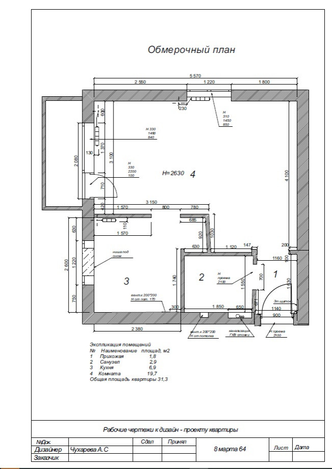
Дизайн проект для молодой девушки. г.Екатеринбург ул. 8 Марта д.64
Проект был выполнен в 2019г, для молодой девушки. На данный момент проект реализован.
Год реализации: 2019
Стоимость проектирования: 34 999 ₽
г. Екатеринбург, улица 8 Марта
23 фотографии
























